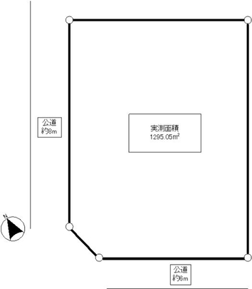
430 million yen, 1295 sq m
Land/Building » Kanto » Tokyo » Edogawa

| | Edogawa-ku, Tokyo 東京都江戸川区 |
| Toei Shinjuku Line "Shinozaki" walk 7 minutes 都営新宿線「篠崎」歩7分 |
Price 価格 | | 430 million yen 4億3000万円 | Building coverage, floor area ratio 建ぺい率・容積率 | | 60% ・ 150% 60%・150% | Sales compartment 販売区画数 | | 1 compartment 1区画 | Land area 土地面積 | | 1295 sq m (measured) 1295m2(実測) | Driveway burden-road 私道負担・道路 | | Nothing, Southwest 8m width (contact the road width 40m), Southeast 6m width 無、南西8m幅(接道幅40m)、南東6m幅 | Land situation 土地状況 | | Vacant lot 更地 | Address 住所 | | Edogawa-ku, Tokyo Shinozaki-cho 5 東京都江戸川区篠崎町5 | Traffic 交通 | | Toei Shinjuku Line "Shinozaki" walk 7 minutes 都営新宿線「篠崎」歩7分
| Person in charge 担当者より | | Rep Nonaka Minesei 担当者野中 峰生 | Contact お問い合せ先 | | Sumitomo Real Estate Sales Co., Ltd. Roppongi business center TEL: 03-5572-6491 Please contact as "saw SUUMO (Sumo)" 住友不動産販売(株)六本木営業センターTEL:03-5572-6491「SUUMO(スーモ)を見た」と問い合わせください | Land of the right form 土地の権利形態 | | Ownership 所有権 | Time delivery 引き渡し時期 | | Consultation 相談 | Land category 地目 | | Hybrid land 雑種地 | Use district 用途地域 | | One middle and high 1種中高 | Other limitations その他制限事項 | | / Organize near the parcel Edogawa Eastern Shinozaki Station / Terrain: flat /江戸川区東部篠崎駅付近土地区画整理/地勢:平坦 | Overview and notices その他概要・特記事項 | | Contact: Nonaka Minesei 担当者:野中 峰生 | Company profile 会社概要 | | <Mediation> Minister of Land, Infrastructure and Transport (11) Sumitomo Real Estate Sales Co., Ltd. Roppongi business center 106-0032 Tokyo, Minato-ku Roppongi 3-16-26 Halifax Building 7th floor No. 002077 <仲介>国土交通大臣(11)第002077号住友不動産販売(株)六本木営業センター〒106-0032 東京都港区六本木3-16-26 ハリファックスビル7階 |
 Compartment figure
区画図
Location
|