32,800,000 yen, 150.1 sq m
Land/Building » Kanto » Tokyo » Hachioji
 
| | Hachioji, Tokyo 東京都八王子市 |
| Keio Sagamihara Line "Keio Horinouchi" walk 15 minutes 京王相模原線「京王堀之内」歩15分 |
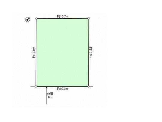
Price 価格 | | 32,800,000 yen 3280万円 | Building coverage, floor area ratio 建ぺい率・容積率 | | 60% ・ 200% 60%・200% | Sales compartment 販売区画数 | | 1 compartment 1区画 | Land area 土地面積 | | 150.1 sq m (measured) 150.1m2(実測) | Driveway burden-road 私道負担・道路 | | Nothing, Southeast 6m width 無、南東6m幅 | Land situation 土地状況 | | Vacant lot 更地 | Address 住所 | | Hachioji, Tokyo Matsuki 東京都八王子市松木 | Traffic 交通 | | Keio Sagamihara Line "Keio Horinouchi" walk 15 minutes Keio Sagamihara Line "Minami-Osawa" bus 13 minutes Fair Hills entrance walk 3 minutes 京王相模原線「京王堀之内」歩15分 京王相模原線「南大沢」バス13分フェアヒルズ入口歩3分
| Person in charge 担当者より | | Rep Furuya NoriHitoshi 担当者古家 典仁 | Contact お問い合せ先 | | Tokyu Livable Inc. Hachioji Center TEL: 0800-603-0171 [Toll free] mobile phone ・ Also available from PHS Caller ID is not notified Please contact the "saw SUUMO (Sumo)" If it does not lead, If the real estate company 東急リバブル(株)八王子センターTEL:0800-603-0171【通話料無料】携帯電話・PHSからもご利用いただけます 発信者番号は通知されません 「SUUMO(スーモ)を見た」と問い合わせください つながらない方、不動産会社の方は
| Land of the right form 土地の権利形態 | | Ownership 所有権 | Building condition 建築条件 | | With 付 | Time delivery 引き渡し時期 | | Consultation 相談 | Land category 地目 | | Residential land 宅地 | Use district 用途地域 | | Two mid-high 2種中高 | Other limitations その他制限事項 | | Preceded subdivided, It may increase or decrease in the area occurs. 分筆前につき、面積に増減が生じる場合があります。 | Overview and notices その他概要・特記事項 | | Contact: Furuya NoriHitoshi 担当者:古家 典仁 | Company profile 会社概要 | | <Mediation> Minister of Land, Infrastructure and Transport (10) No. 002611 (one company) Real Estate Association (Corporation) metropolitan area real estate Fair Trade Council member Tokyu Livable Co., Ltd. Hachioji center Yubinbango192-0083 Hachioji, Tokyo Asahi-cho 12-4 Nissay Hachioji building third floor 5th floor <仲介>国土交通大臣(10)第002611号(一社)不動産協会会員 (公社)首都圏不動産公正取引協議会加盟東急リバブル(株)八王子センター〒192-0083 東京都八王子市旭町12-4 日本生命八王子ビル3階5階 |
Local land photo現地土地写真  No. 3 place appearance
3号地外観
 Compartment figure
区画図
Location
|