|
|
Hachioji, Tokyo
東京都八王子市
|
|
JR Chuo Line "Takao" walk 12 minutes
JR中央線「高尾」歩12分
|
|
Convenient 2 line Takao Station within walking distance! 2 direction land properties! Building conditions There is no. Building reference plan offers
2路線高尾駅徒歩圏内で便利!2方角地物件!建築条件はございません。建物参考プランご用意しています
|
|
Because under the south side adjacent land about 3.5m, Day is good.
南側隣地約3.5m下の為、日当り良好です。
|
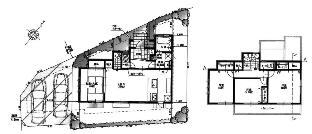
Features pickup 特徴ピックアップ | | 2 along the line more accessible / Yang per good / Corner lot / No construction conditions / Building plan example there 2沿線以上利用可 /陽当り良好 /角地 /建築条件なし /建物プラン例有り |
Price 価格 | | 26.5 million yen 2650万円 |
Building coverage, floor area ratio 建ぺい率・容積率 | | Fifty percent ・ 80% 50%・80% |
Sales compartment 販売区画数 | | 1 compartment 1区画 |
Total number of compartments 総区画数 | | 1 compartment 1区画 |
Land area 土地面積 | | 158.48 sq m (registration) 158.48m2(登記) |
Driveway burden-road 私道負担・道路 | | Share equity 39 sq m × (1 / 10), Northwest 4m width, Southwest 4.5m width 共有持分39m2×(1/10)、北西4m幅、南西4.5m幅 |
Land situation 土地状況 | | Furuya There 古家有り |
Address 住所 | | Hachioji, Tokyo Nagafusa cho 東京都八王子市長房町 |
Traffic 交通 | | JR Chuo Line "Takao" walk 12 minutes Keiō Takao Line "Takao" walk 13 minutes JR中央線「高尾」歩12分 京王高尾線「高尾」歩13分
|
Related links 関連リンク | | [Related Sites of this company] 【この会社の関連サイト】 |
Contact お問い合せ先 | | TEL: 0120-207714 [Toll free] Please contact the "saw SUUMO (Sumo)" TEL:0120-207714【通話料無料】「SUUMO(スーモ)を見た」と問い合わせください |
Land of the right form 土地の権利形態 | | Ownership 所有権 |
Time delivery 引き渡し時期 | | Consultation 相談 |
Land category 地目 | | Residential land 宅地 |
Use district 用途地域 | | One low-rise 1種低層 |
Other limitations その他制限事項 | | Second kind scenic zone 第2種風致地区 |
Overview and notices その他概要・特記事項 | | Facilities: Public Water Supply, This sewage 設備:公営水道、本下水 |
Company profile 会社概要 | | <Mediation> Governor of Tokyo (7) No. 049581 (Corporation) Tokyo Metropolitan Government Building Lots and Buildings Transaction Business Association (Corporation) metropolitan area real estate Fair Trade Council member (Ltd.) KyoSusumu housing Yubinbango192-0055 Hachioji, Tokyo Yagi-cho, 5-4 <仲介>東京都知事(7)第049581号(公社)東京都宅地建物取引業協会会員 (公社)首都圏不動産公正取引協議会加盟(株)協進住宅〒192-0055 東京都八王子市八木町5-4 |