26,800,000 yen, 239.45 sq m
Land/Building » Kanto » Tokyo » Hino
 
| | Hino City, Tokyo 東京都日野市 |
| Keio Line "Hirayama Castle park" walk 7 minutes 京王線「平山城址公園」歩7分 |
| A quiet residential area in the Keio Hirayama subdivision! "Hirayama Castle park" station walk 7 minutes! Gout per yang good! Site area of about 72 square meters! 京王平山分譲地内の閑静な住宅地!『平山城址公園』駅徒歩7分!陽当たり痛風良好!敷地面積約72坪! |
Features pickup 特徴ピックアップ | | Land 50 square meters or more / Or more before road 6m / No construction conditions 土地50坪以上 /前道6m以上 /建築条件なし | Price 価格 | | 26,800,000 yen 2680万円 | Building coverage, floor area ratio 建ぺい率・容積率 | | Fifty percent ・ Hundred percent 50%・100% | Sales compartment 販売区画数 | | 1 compartment 1区画 | Land area 土地面積 | | 239.45 sq m (72.43 tsubo) (Registration) 239.45m2(72.43坪)(登記) | Driveway burden-road 私道負担・道路 | | Nothing, North 6m width (contact the road width 13m) 無、北6m幅(接道幅13m) | Land situation 土地状況 | | Furuya There 古家有り | Address 住所 | | Hino City, Tokyo Hirayama 2 東京都日野市平山2 | Traffic 交通 | | Keio Line "Hirayama Castle park" walk 7 minutes 京王線「平山城址公園」歩7分
| Contact お問い合せ先 | | Keio Real Estate Co., Ltd. Shinjuku business center TEL: 0800-603-0034 [Toll free] mobile phone ・ Also available from PHS Caller ID is not notified Please contact the "saw SUUMO (Sumo)" If it does not lead, If the real estate company 京王不動産(株)新宿営業センターTEL:0800-603-0034【通話料無料】携帯電話・PHSからもご利用いただけます 発信者番号は通知されません 「SUUMO(スーモ)を見た」と問い合わせください つながらない方、不動産会社の方は
| Land of the right form 土地の権利形態 | | Ownership 所有権 | Time delivery 引き渡し時期 | | Consultation 相談 | Land category 地目 | | Residential land 宅地 | Use district 用途地域 | | One low-rise 1種低層 | Other limitations その他制限事項 | | Residential land development construction regulation area, Height district 宅地造成工事規制区域、高度地区 | Overview and notices その他概要・特記事項 | | Facilities: Public Water Supply, City gas 設備:公営水道、都市ガス | Company profile 会社概要 | | <Mediation> Minister of Land, Infrastructure and Transport (12) No. 001608 (one company) Real Estate Association (Corporation) metropolitan area real estate Fair Trade Council member Keio Real Estate Co., Ltd. Shinjuku business center 160-0023 Tokyo Nishi-Shinjuku, Shinjuku-ku, 1-19 Keio Mall Annex <仲介>国土交通大臣(12)第001608号(一社)不動産協会会員 (公社)首都圏不動産公正取引協議会加盟京王不動産(株)新宿営業センター〒160-0023 東京都新宿区西新宿1-19 京王モール アネックス |
 Other local
その他現地
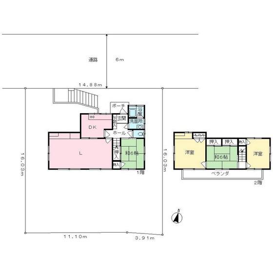
Compartment figure区画図  Land price 26,800,000 yen, Land area 239.45 sq m
土地価格2680万円、土地面積239.45m2
 Local land photo
現地土地写真
 Other local
その他現地
Location
|