Land/Building » Kanto » Tokyo » Itabashi
 
| | Itabashi-ku, Tokyo 東京都板橋区 |
| Tobu Tojo Line "Kamiitabashi" walk 10 minutes 東武東上線「上板橋」歩10分 |
| Land 50 square meters or more, Vacant lot passes, Yang per good, A quiet residential area, Shaping land, No construction conditions, Pre-ground survey, It is close to the city, Flat to the station, Siemens south road, Leafy residential area, Mu front building, City gas, Flat terrain 土地50坪以上、更地渡し、陽当り良好、閑静な住宅地、整形地、建築条件なし、地盤調査済、市街地が近い、駅まで平坦、南側道路面す、緑豊かな住宅地、前面棟無、都市ガス、平坦地 |
| Land 50 square meters or more, Vacant lot passes, Yang per good, A quiet residential area, Shaping land, No construction conditions, Pre-ground survey, It is close to the city, Flat to the station, Siemens south road, Leafy residential area, Mu front building, City gas, Flat terrain 土地50坪以上、更地渡し、陽当り良好、閑静な住宅地、整形地、建築条件なし、地盤調査済、市街地が近い、駅まで平坦、南側道路面す、緑豊かな住宅地、前面棟無、都市ガス、平坦地 |
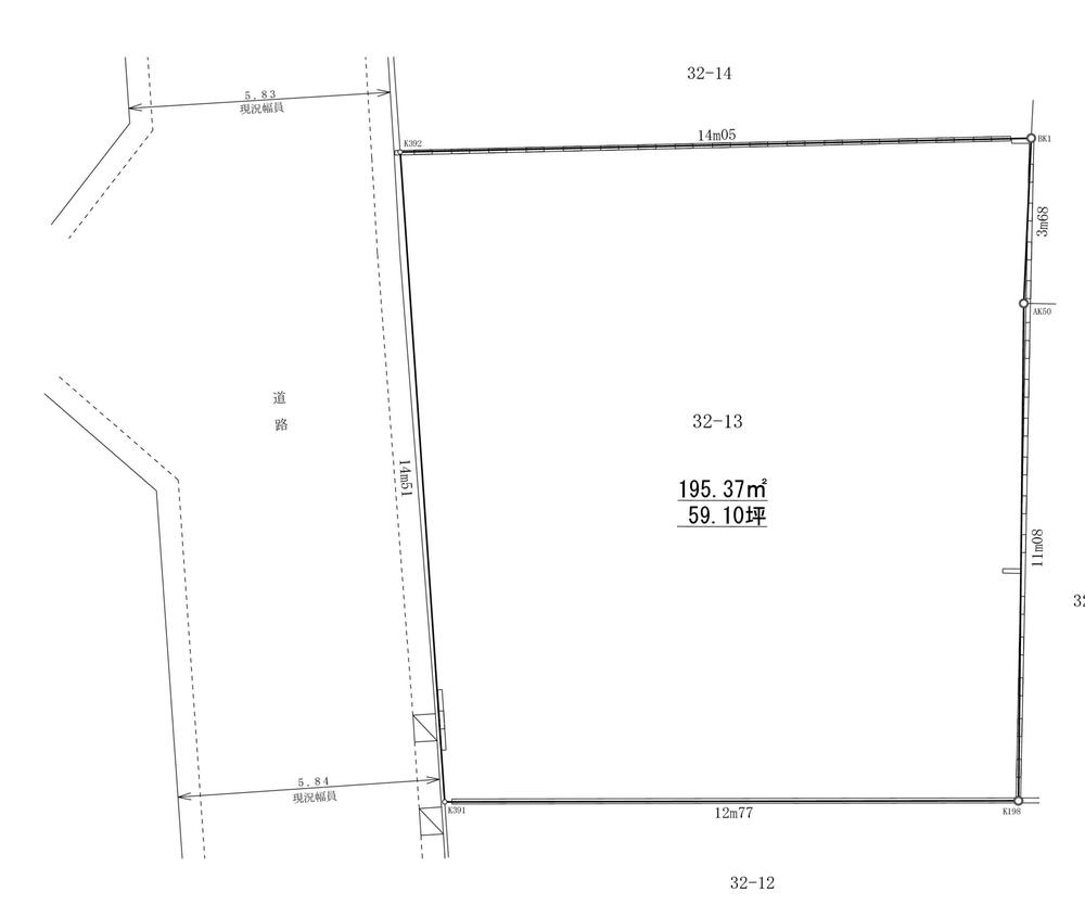
Features pickup 特徴ピックアップ | | Pre-ground survey / Land 50 square meters or more / Vacant lot passes / It is close to the city / Yang per good / Flat to the station / A quiet residential area / Shaping land / No construction conditions / Leafy residential area / Mu front building / City gas / Flat terrain 地盤調査済 /土地50坪以上 /更地渡し /市街地が近い /陽当り良好 /駅まで平坦 /閑静な住宅地 /整形地 /建築条件なし /緑豊かな住宅地 /前面棟無 /都市ガス /平坦地 | Price 価格 | | 95,800,000 yen 9580万円 | Building coverage, floor area ratio 建ぺい率・容積率 | | 60% ・ 200% 60%・200% | Sales compartment 販売区画数 | | 1 compartment 1区画 | Total number of compartments 総区画数 | | 1 compartment 1区画 | Land area 土地面積 | | 195.55 sq m (measured) 195.55m2(実測) | Driveway burden-road 私道負担・道路 | | Nothing, Southwest 5.8m width (contact the road width 14.5m) 無、南西5.8m幅(接道幅14.5m) | Land situation 土地状況 | | Vacant lot 更地 | Address 住所 | | Itabashi-ku, Tokyo Tohshin 1 東京都板橋区東新町1 | Traffic 交通 | | Tobu Tojo Line "Kamiitabashi" walk 10 minutes Tobu Tojo Line "Tokiwadai" walk 12 minutes 東武東上線「上板橋」歩10分 東武東上線「ときわ台」歩12分
| Contact お問い合せ先 | | Beratekku sale (stock) TEL: 0120-213154 [Toll free] Please contact the "saw SUUMO (Sumo)" ベラテック販売(株)TEL:0120-213154【通話料無料】「SUUMO(スーモ)を見た」と問い合わせください | Land of the right form 土地の権利形態 | | Ownership 所有権 | Time delivery 引き渡し時期 | | Consultation 相談 | Land category 地目 | | Residential land 宅地 | Use district 用途地域 | | One middle and high 1種中高 | Other limitations その他制限事項 | | Regulations have by the Landscape Act, Height district, Quasi-fire zones 景観法による規制有、高度地区、準防火地域 | Overview and notices その他概要・特記事項 | | Facilities: Public Water Supply, This sewage, City gas 設備:公営水道、本下水、都市ガス | Company profile 会社概要 | | <Seller> Governor of Tokyo (9) No. 041790 (Corporation) Tokyo Metropolitan Government Building Lots and Buildings Transaction Business Association (Corporation) metropolitan area real estate Fair Trade Council member Beratekku Sales Co., Ltd. Yubinbango151-0072 Shibuya-ku, Tokyo Hatagaya 2-13-6 <売主>東京都知事(9)第041790号(公社)東京都宅地建物取引業協会会員 (公社)首都圏不動産公正取引協議会加盟ベラテック販売(株)〒151-0072 東京都渋谷区幡ヶ谷2-13-6 |
The entire compartment Figure全体区画図  Compartment figure
区画図
Local photos, including front road前面道路含む現地写真  Local (10 May 2013) Shooting
現地(2013年10月)撮影
Local land photo現地土地写真  Local (10 May 2013) Shooting
現地(2013年10月)撮影
Location
|