19,990,000 yen, 53.12 sq m
Land/Building » Kanto » Tokyo » Itabashi
 
| | Itabashi-ku, Tokyo 東京都板橋区 |
| Tobu Tojo Line "Tokiwadai" walk 14 minutes 東武東上線「ときわ台」歩14分 |
| Terms and conditions negotiable! ! It is 16.06 square meters of land of Itabashi Maeno-cho 2-chome. Since there is no building conditions You can choose your free housing manufacturer. Nearby is a good location of the new construction Rush, For more information, please contact us 諸条件相談可!! 板橋区前野町2丁目の16.06坪の土地です。建築条件はありませんのでご自由に住宅メーカーを選べます。近隣は新築ラッシュの好立地、詳細はぜひお問い合わせ下さい |
Price 価格 | | 19,990,000 yen 1999万円 | Building coverage, floor area ratio 建ぺい率・容積率 | | 60% ・ 200% 60%・200% | Sales compartment 販売区画数 | | 1 compartment 1区画 | Land area 土地面積 | | 53.12 sq m (registration) 53.12m2(登記) | Driveway burden-road 私道負担・道路 | | Nothing, Northeast 5.8m width 無、北東5.8m幅 | Land situation 土地状況 | | Vacant lot 更地 | Address 住所 | | Itabashi-ku, Tokyo Maeno-cho, 2 東京都板橋区前野町2 | Traffic 交通 | | Tobu Tojo Line "Tokiwadai" walk 14 minutes Toei Mita Line "Sakagami Shimura" walk 16 minutes 東武東上線「ときわ台」歩14分 都営三田線「志村坂上」歩16分
| Related links 関連リンク | | [Related Sites of this company] 【この会社の関連サイト】 | Person in charge 担当者より | | The person in charge Shoji Okuyama 担当者奥山章司 | Contact お問い合せ先 | | (Ltd.) Your agent TEL: 0120-997786 [Toll free] Please contact the "saw SUUMO (Sumo)" (株)ユアエージェントTEL:0120-997786【通話料無料】「SUUMO(スーモ)を見た」と問い合わせください | Land of the right form 土地の権利形態 | | Ownership 所有権 | Time delivery 引き渡し時期 | | Consultation 相談 | Land category 地目 | | Residential land 宅地 | Use district 用途地域 | | Semi-industrial 準工業 | Other limitations その他制限事項 | | Second kind altitude district 第2種高度地区 | Overview and notices その他概要・特記事項 | | Contact: Shoji Okuyama, Facilities: Public Water Supply, This sewage 担当者:奥山章司、設備:公営水道、本下水 | Company profile 会社概要 | | <Mediation> Governor of Tokyo (1) No. 095242 (Ltd.) Your agent Yubinbango135-0045 Koto-ku, Tokyo Furuishiba 3-1-5 <仲介>東京都知事(1)第095242号(株)ユアエージェント〒135-0045 東京都江東区古石場3-1-5 |
 Local land photo
現地土地写真
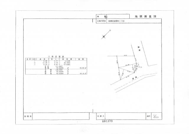
Compartment figure区画図  Land price 19,990,000 yen, Land area 53.12 sq m
土地価格1999万円、土地面積53.12m2
 Local photos, including front road
前面道路含む現地写真
 Local land photo
現地土地写真
 Local photos, including front road
前面道路含む現地写真
 Other local
その他現地
Location
|