Land/Building » Kanto » Tokyo » Itabashi
 
| | Itabashi-ku, Tokyo 東京都板橋区 |
| Toei Mita Line "Nishidai" walk 15 minutes 都営三田線「西台」歩15分 |
| Yang per good, A quiet residential area, Flat terrain, Building plan example there, 2 along the line more accessible, Flat to the station, City gas 陽当り良好、閑静な住宅地、平坦地、建物プラン例有り、2沿線以上利用可、駅まで平坦、都市ガス |
Features pickup 特徴ピックアップ | | 2 along the line more accessible / Yang per good / Flat to the station / A quiet residential area / City gas / Flat terrain / Building plan example there 2沿線以上利用可 /陽当り良好 /駅まで平坦 /閑静な住宅地 /都市ガス /平坦地 /建物プラン例有り | Price 価格 | | 35,508,000 yen 3550万8000円 | Building coverage, floor area ratio 建ぺい率・容積率 | | Fifty percent ・ Hundred percent 50%・100% | Sales compartment 販売区画数 | | 1 compartment 1区画 | Total number of compartments 総区画数 | | 1 compartment 1区画 | Land area 土地面積 | | 96.81 sq m 96.81m2 | Driveway burden-road 私道負担・道路 | | Nothing, East 4.5m width (contact the road width 6.3m) 無、東4.5m幅(接道幅6.3m) | Land situation 土地状況 | | Vacant lot 更地 | Address 住所 | | Itabashi-ku, Tokyo Nishidai 2 東京都板橋区西台2 | Traffic 交通 | | Toei Mita Line "Nishidai" walk 15 minutes Tobu Tojo Line "Tobunerima" walk 20 minutes 都営三田線「西台」歩15分 東武東上線「東武練馬」歩20分
| Contact お問い合せ先 | | TEL: 0800-603-1287 [Toll free] mobile phone ・ Also available from PHS Caller ID is not notified Please contact the "saw SUUMO (Sumo)" If it does not lead, If the real estate company TEL:0800-603-1287【通話料無料】携帯電話・PHSからもご利用いただけます 発信者番号は通知されません 「SUUMO(スーモ)を見た」と問い合わせください つながらない方、不動産会社の方は
| Land of the right form 土地の権利形態 | | Ownership 所有権 | Building condition 建築条件 | | With 付 | Time delivery 引き渡し時期 | | Immediate delivery allowed 即引渡し可 | Land category 地目 | | Residential land 宅地 | Use district 用途地域 | | One low-rise 1種低層 | Other limitations その他制限事項 | | Quasi-fire zones, Nishidai 2-chome surrounding area district plan 準防火地域、西台2丁目周辺地区地区計画 | Overview and notices その他概要・特記事項 | | Facilities: Public Water Supply, This sewage, City gas 設備:公営水道、本下水、都市ガス | Company profile 会社概要 | | <Mediation> Minister of Land, Infrastructure and Transport (1) No. 007428 (Corporation) Prefecture Building Lots and Buildings Transaction Business Association (Corporation) metropolitan area real estate Fair Trade Council member Century 21 (Ltd.) Fukushima construction Itabashi office Yubinbango174-0076 Itabashi-ku, Tokyo Kamiitabashi 2-40-10 <仲介>国土交通大臣(1)第007428号(公社)埼玉県宅地建物取引業協会会員 (公社)首都圏不動産公正取引協議会加盟センチュリー21(株)フクシマ建設板橋営業所〒174-0076 東京都板橋区上板橋2-40-10 |
 Local land photo
現地土地写真
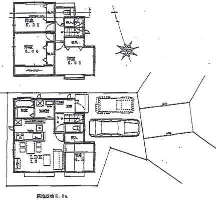
Compartment view + building plan example区画図+建物プラン例  Building plan example, Land price 35,508,000 yen, Land area 96.81 sq m , Building price 10,293,000 yen, Building area 85.28 sq m
建物プラン例、土地価格3550万8000円、土地面積96.81m2、建物価格1029万3000円、建物面積85.28m2
 Local land photo
現地土地写真
 Local land photo
現地土地写真
 Local photos, including front road
前面道路含む現地写真
Location
|