49 million yen, 238.78 sq m
Land/Building » Kanto » Tokyo » Katsushika
 
| | Katsushika-ku, Tokyo 東京都葛飾区 |
| Keisei Oshiage Line "Yotsugi" walk 5 minutes 京成押上線「四ツ木」歩5分 |
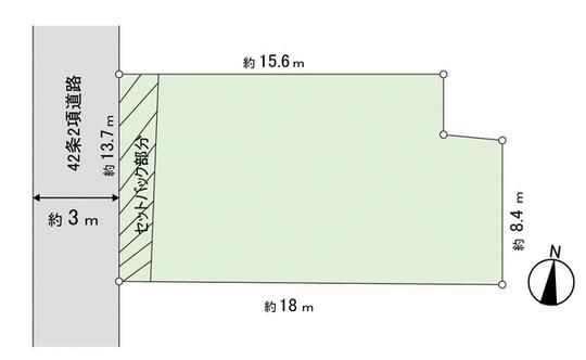
Price 価格 | | 49 million yen 4900万円 | Building coverage, floor area ratio 建ぺい率・容積率 | | 60% ・ 200% 60%・200% | Sales compartment 販売区画数 | | 1 compartment 1区画 | Land area 土地面積 | | 238.78 sq m (registration) 238.78m2(登記) | Driveway burden-road 私道負担・道路 | | Nothing, West 3m width (contact the road width 13.7m) 無、西3m幅(接道幅13.7m) | Land situation 土地状況 | | Vacant lot 更地 | Address 住所 | | Katsushika-ku, Tokyo Higashiyotsugi 3 東京都葛飾区東四つ木3 | Traffic 交通 | | Keisei Oshiage Line "Yotsugi" walk 5 minutes 京成押上線「四ツ木」歩5分
| Person in charge 担当者より | | Rep Seiji Yokoyama 担当者横山誠司 | Contact お問い合せ先 | | Mitsui Rehouse Shinkoiwa shop Mitsui Fudosan Realty (Ltd.) TEL: 0120-926531 [Toll free] Please contact the "saw SUUMO (Sumo)" 三井のリハウス新小岩店三井不動産リアルティ(株)TEL:0120-926531【通話料無料】「SUUMO(スーモ)を見た」と問い合わせください | Land of the right form 土地の権利形態 | | Ownership 所有権 | Time delivery 引き渡し時期 | | Immediate delivery allowed 即引渡し可 | Land category 地目 | | Residential land 宅地 | Use district 用途地域 | | Semi-industrial 準工業 | Overview and notices その他概要・特記事項 | | Contact: Seiji Yokoyama 担当者:横山誠司 | Company profile 会社概要 | | <Mediation> Minister of Land, Infrastructure and Transport (13) No. 000777 (one company) Property distribution management Association (Corporation) metropolitan area real estate Fair Trade Council member Mitsui Rehouse Shinkoiwa shop Mitsui Fudosan Realty Co. Yubinbango124-0024 Katsushika-ku, Tokyo Shinkoiwa 1-48-11 Kita乃屋 First Building fourth floor <仲介>国土交通大臣(13)第000777号(一社)不動産流通経営協会会員 (公社)首都圏不動産公正取引協議会加盟三井のリハウス新小岩店三井不動産リアルティ(株)〒124-0024 東京都葛飾区新小岩1-48-11 北乃屋ファーストビル4階 |
 Local land photo
現地土地写真
 Compartment figure
区画図
Location
|