27,800,000 yen ~ 38,300,000 yen, 100 sq m ~ 110 sq m
Land/Building » Kanto » Tokyo » Kodaira
 
| | Tokyo Kodaira 東京都小平市 |
| JR Chuo Line "Kokubunji" walk 18 minutes JR中央線「国分寺」歩18分 |
Price 価格 | | 27,800,000 yen ~ 38,300,000 yen 2780万円 ~ 3830万円 | Building coverage, floor area ratio 建ぺい率・容積率 | | Kenpei rate: 40% ・ 80% 建ペい率:40%・80% | Sales compartment 販売区画数 | | 7 compartment 7区画 | Total number of compartments 総区画数 | | 7 compartment 7区画 | Land area 土地面積 | | 100 sq m ~ 110 sq m 100m2 ~ 110m2 | Land situation 土地状況 | | Vacant lot 更地 | Address 住所 | | Tokyo Kodaira Josuiminami cho 2 東京都小平市上水南町2 | Traffic 交通 | | JR Chuo Line "Kokubunji" walk 18 minutes Seibu Tamako Line "Hitotsubashigakuen" walk 18 minutes JR中央線「国分寺」歩18分 西武多摩湖線「一橋学園」歩18分
| Contact お問い合せ先 | | (Ltd.) Housing zero TEL: 0120-517086 [Toll free] Please contact the "saw SUUMO (Sumo)" (株)ハウジングゼロTEL:0120-517086【通話料無料】「SUUMO(スーモ)を見た」と問い合わせください | Land of the right form 土地の権利形態 | | Ownership 所有権 | Time delivery 引き渡し時期 | | Consultation 相談 | Land category 地目 | | Residential land 宅地 | Use district 用途地域 | | One low-rise 1種低層 | Overview and notices その他概要・特記事項 | | Facilities: Public Water Supply, This sewage, City gas 設備:公営水道、本下水、都市ガス | Company profile 会社概要 | | <Marketing alliance (mediated)> Governor of Tokyo (2) No. 088080 (Ltd.) housing zero Yubinbango184-0015 Koganei, Tokyo Nukuikita cho 2-5-11 <販売提携(媒介)>東京都知事(2)第088080号(株)ハウジングゼロ〒184-0015 東京都小金井市貫井北町2-5-11 |
Local land photo現地土地写真  Local (11 May 2013) Shooting
現地(2013年11月)撮影
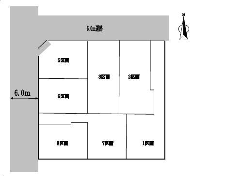
 The entire compartment Figure
全体区画図
Location
|