|
|
Meguro-ku, Tokyo
東京都目黒区
|
|
Tokyu Meguro Line "Musashikoyama" walk 12 minutes
東急目黒線「武蔵小山」歩12分
|
|
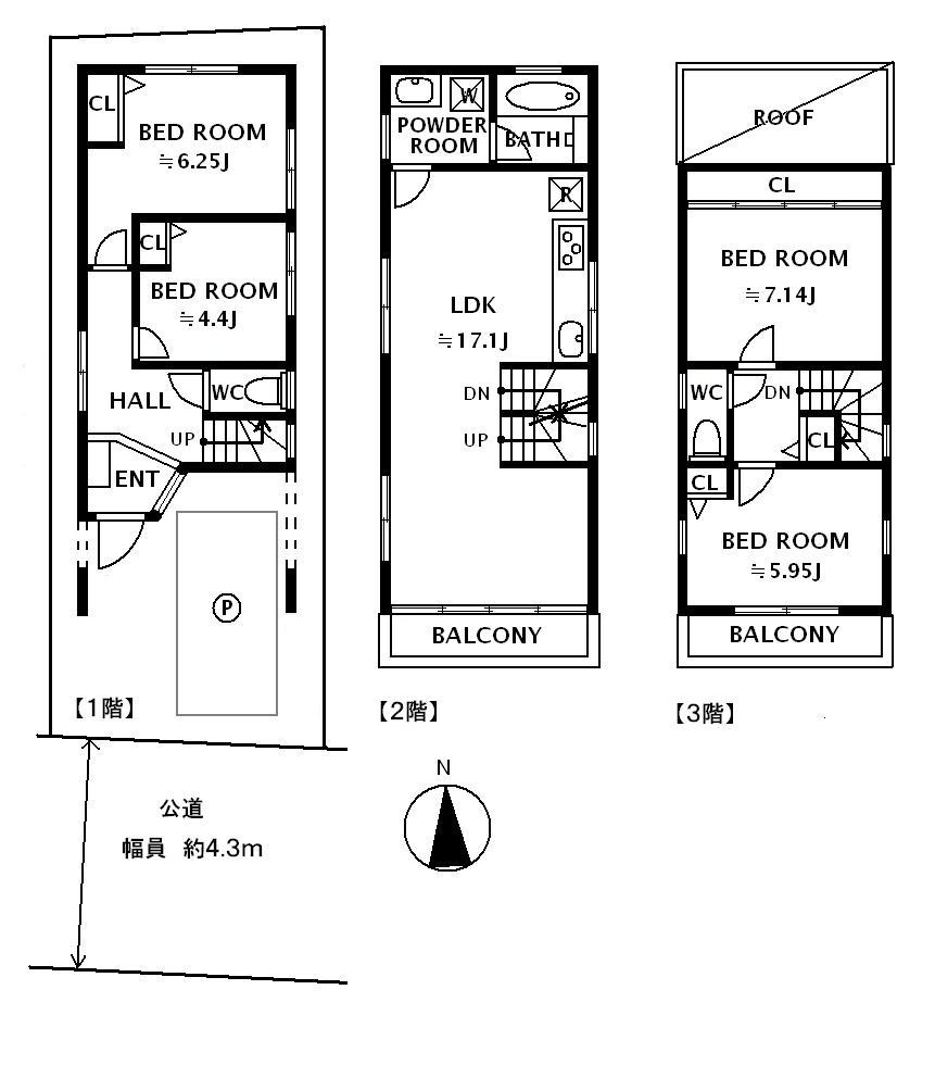
◇ Megurohon the town of sunny shaping land ◇ ~ About 5.0m against road on the south side width about 4.3m on public roads ~ A quiet residential area ~ No construction conditions
◇目黒本町の日当たり良好な整形地◇ ~ 南側幅員約4.3m公道に約5.0m接道 ~ 閑静な住宅地 ~ 建築条件無し
|
|
■ About on the south side width about 4.3m public road 5.0m contact road of shaping land. ■ Good is per yang. ■ Around the living environment is good in a quiet residential area ■ There reference plan. Please feel free to contact us.
■南側幅員約4.3m公道に約5.0m接道の整形地。■陽当り良好です。■周辺は閑静な住宅地で住環境良好です■参考プランございます。お気軽にお問合せくださいませ。
|
Features pickup 特徴ピックアップ | | 2 along the line more accessible / Vacant lot passes / Super close / It is close to the city / Yang per good / Flat to the station / Siemens south road / A quiet residential area / Around traffic fewer / Shaping land / No construction conditions / Urban neighborhood / City gas / Flat terrain / Building plan example there 2沿線以上利用可 /更地渡し /スーパーが近い /市街地が近い /陽当り良好 /駅まで平坦 /南側道路面す /閑静な住宅地 /周辺交通量少なめ /整形地 /建築条件なし /都市近郊 /都市ガス /平坦地 /建物プラン例有り |
Price 価格 | | 49,800,000 yen 4980万円 |
Building coverage, floor area ratio 建ぺい率・容積率 | | 60% ・ 200% 60%・200% |
Sales compartment 販売区画数 | | 1 compartment 1区画 |
Land area 土地面積 | | 66.17 sq m (20.01 tsubo) (measured) 66.17m2(20.01坪)(実測) |
Driveway burden-road 私道負担・道路 | | Nothing, South 4.3m width 無、南4.3m幅 |
Land situation 土地状況 | | Vacant lot 更地 |
Address 住所 | | Meguro-ku, Tokyo Megurohon cho 4 東京都目黒区目黒本町4 |
Traffic 交通 | | Tokyu Meguro Line "Musashikoyama" walk 12 minutes Tokyu Toyoko Line "liberal arts college" walk 15 minutes 東急目黒線「武蔵小山」歩12分 東急東横線「学芸大学」歩15分
|
Person in charge 担当者より | | [Regarding this property.] About on the south side width about 4.3m public road 5.0m contact road of shaping land. 【この物件について】南側幅員約4.3m公道に約5.0m接道の整形地。 |
Contact お問い合せ先 | | TEL: 03-5437-6601 Please contact as "saw SUUMO (Sumo)" TEL:03-5437-6601「SUUMO(スーモ)を見た」と問い合わせください |
Land of the right form 土地の権利形態 | | Ownership 所有権 |
Time delivery 引き渡し時期 | | Consultation 相談 |
Land category 地目 | | Residential land 宅地 |
Use district 用途地域 | | One middle and high 1種中高 |
Other limitations その他制限事項 | | Quasi-fire zones, Site area minimum Yes 準防火地域、敷地面積最低限度有 |
Overview and notices その他概要・特記事項 | | Facilities: Public Water Supply, This sewage, City gas 設備:公営水道、本下水、都市ガス |
Company profile 会社概要 | | <Mediation> Governor of Tokyo (3) No. Century 21 (Ltd.) Keynes 141-0031 Tokyo, Shinagawa-ku, the first 080,104 Nishigotanda 1-32-5 <仲介>東京都知事(3)第080104号センチュリー21(株)ケインズ〒141-0031 東京都品川区西五反田1-32-5 |