Land/Building » Kanto » Tokyo » Meguro
 
| | Meguro-ku, Tokyo 東京都目黒区 |
| Tokyu Meguro Line "Musashikoyama" walk 13 minutes 東急目黒線「武蔵小山」歩13分 |
| Tokyu Meguro Line "Musashikoyama" walk 13 minutes! Tokyu Toyoko Line "Gakugeidaigaku Station" 14 mins! 東急目黒線「武蔵小山駅」徒歩13分!東急東横線「学芸大学駅」徒歩14分! |
| Contact with the public road 7М is shaping area of 25 square meters! Popular Meguro area that has detached plan available! Living environment favorable, Sunny, A quiet residential area 公道7Мに接する25坪の整形地です!戸建プランご用意あります人気の目黒エリア!住環境良好、日当たり良好、閑静な住宅街 |
Features pickup 特徴ピックアップ | | 2 along the line more accessible / Vacant lot passes / Or more before road 6m / No construction conditions / City gas 2沿線以上利用可 /更地渡し /前道6m以上 /建築条件なし /都市ガス | Price 価格 | | 62,500,000 yen 6250万円 | Building coverage, floor area ratio 建ぺい率・容積率 | | 80% ・ 300% 80%・300% | Sales compartment 販売区画数 | | 1 compartment 1区画 | Land area 土地面積 | | 83.3 sq m (25.19 tsubo) (measured) 83.3m2(25.19坪)(実測) | Driveway burden-road 私道負担・道路 | | Nothing, West 7.3m width (contact the road width 7.8m) 無、西7.3m幅(接道幅7.8m) | Land situation 土地状況 | | Furuya There vacant lot passes 古家有り更地渡し | Address 住所 | | Meguro-ku, Tokyo Megurohon cho 4 東京都目黒区目黒本町4 | Traffic 交通 | | Tokyu Meguro Line "Musashikoyama" walk 13 minutes Tokyu Toyoko Line "liberal arts college" walk 14 minutes Tokyu Meguro Line "Nishikoyama" walk 17 minutes 東急目黒線「武蔵小山」歩13分 東急東横線「学芸大学」歩14分 東急目黒線「西小山」歩17分
| Contact お問い合せ先 | | Pitattohausu Iwamotocho shop Co., Ltd. Brilliant TEL: 0800-805-5675 [Toll free] mobile phone ・ Also available from PHS Caller ID is not notified Please contact the "saw SUUMO (Sumo)" If it does not lead, If the real estate company ピタットハウス岩本町店(株)ブリリアントTEL:0800-805-5675【通話料無料】携帯電話・PHSからもご利用いただけます 発信者番号は通知されません 「SUUMO(スーモ)を見た」と問い合わせください つながらない方、不動産会社の方は
| Land of the right form 土地の権利形態 | | Ownership 所有権 | Time delivery 引き渡し時期 | | Consultation 相談 | Land category 地目 | | Residential land 宅地 | Use district 用途地域 | | Residential 近隣商業 | Other limitations その他制限事項 | | Third kind altitude district, Conflict prevention ordinance relating to the construction of high-rise buildings 第3種高度地区、中高層建築物の建築に係る紛争防止条例 | Overview and notices その他概要・特記事項 | | Facilities: Public Water Supply, This sewage, City gas 設備:公営水道、本下水、都市ガス | Company profile 会社概要 | | <Seller> Governor of Tokyo (1) No. 092862 Pitattohausu Iwamotocho shop Co., Ltd. Brilliant Yubinbango101-0032, Chiyoda-ku, Tokyo Iwamotocho 2-11-7 <売主>東京都知事(1)第092862号ピタットハウス岩本町店(株)ブリリアント〒101-0032 東京都千代田区岩本町2-11-7 |
Local land photo現地土地写真  It is shaping land that is in contact with the public road 7М
公道7Мに接する整形地です
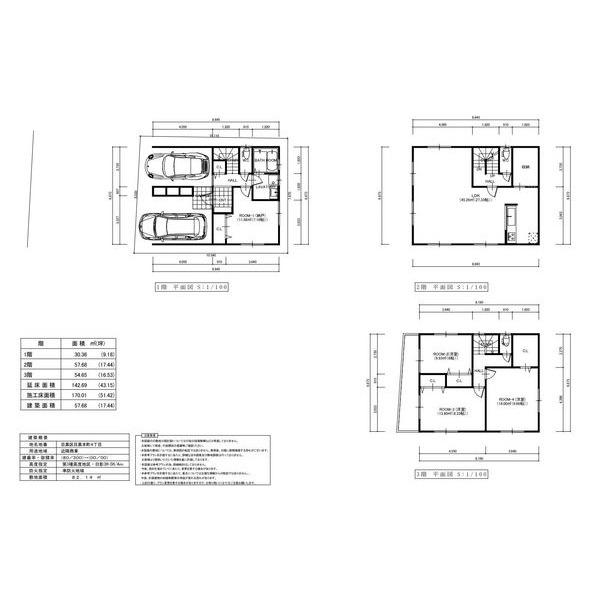
Compartment figure区画図  Land price 62,500,000 yen, Land area 83.3 sq m detached reference plan
土地価格6250万円、土地面積83.3m2 戸建参考プラン
Local land photo現地土地写真  Soku, It is possible architecture! Building conditions There is no
即、建築可能です!建築条件はございません
Drug storeドラッグストア  Medicine Seijo Megurohon the town to the store 549m medicine Seijo Megurohon the town shop
くすりセイジョー目黒本町店まで549m くすりセイジョー目黒本町店
View photos from the local現地からの眺望写真  Spacious front road
広々とした前面道路
Local land photo現地土地写真  Your favorite manufacturer, You can architecture at builders.
お好きなメーカー、工務店で建築頂けます。
Shopping centreショッピングセンター  3365m Morgenmarked Meguro street to Mitsukoshi Ebisu
恵比寿三越まで3365m Morgenmarked目黒通り
Convenience storeコンビニ  229m Seven-Eleven Shimizu Ikemise to Seven-Eleven Shimizu Ikemise
セブンイレブン清水池店まで229m セブンイレブン清水池店
Park公園  260m Shimizu pond park until Shimizu pond park
清水池公園まで260m 清水池公園
Library図書館  154m Meguro Ward Megurohon the town library to library Meguro Ward Megurohon cho
目黒区立目黒本町図書館まで154m 目黒区立目黒本町図書館
Kindergarten ・ Nursery幼稚園・保育園  Nursery 211m Megurohon the town until the nursery Megurohon cho
目黒本町保育園まで211m 目黒本町保育園
Location
|