Land/Building » Kanto » Tokyo » Meguro
 
| | Meguro-ku, Tokyo 東京都目黒区 |
| Tokyu Toyoko Line "Yutenji" walk 7 minutes 東急東横線「祐天寺」歩7分 |
| Toyoko "Yutenji" station 7-minute walk of the good location. The other also "Nakameguro" a 10-minute walk, 19 minutes "Ebisu" walk are available. 東横線「祐天寺」駅徒歩7分の好立地。他にも「中目黒」徒歩10分、「恵比寿」徒歩19分が利用可能です。 |
| ~ Recommended POINT ~ ● city history and new culture meet, A comfortable life in Yutenji. ● Daikanyama ・ Also access good fashionable town such as Ebisu. ● There floor area of 86 square meters 3LDK plan of <Reference Plan> atrium LDK. Surrounding properties also together we will introduce. In our company, Real estate experts ・ FP will be thorough support looking for your My Home. [Free dial] Please feel free to contact us at 0120-917-150. ~ オススメPOINT ~ ●歴史と新しい文化が交わる街、祐天寺で快適ライフを。●代官山・恵比寿などのおしゃれな街にもアクセス良好。●<参考プラン>吹き抜けLDKの延床面積86平米3LDKプランあり。周辺物件も併せてご紹介致します。弊社では、不動産の専門家・FPがあなたのマイホーム探しを徹底サポート致します。【フリーダイヤル】0120-917-150までお気軽にお問い合わせくださいませ。 |
Features pickup 特徴ピックアップ | | 2 along the line more accessible / A quiet residential area / No construction conditions 2沿線以上利用可 /閑静な住宅地 /建築条件なし | Price 価格 | | 44,800,000 yen 4480万円 | Building coverage, floor area ratio 建ぺい率・容積率 | | 60% ・ 150% 60%・150% | Sales compartment 販売区画数 | | 1 compartment 1区画 | Land area 土地面積 | | 88.01 sq m (measured) 88.01m2(実測) | Driveway burden-road 私道負担・道路 | | Nothing 無 | Land situation 土地状況 | | Vacant lot 更地 | Address 住所 | | Meguro-ku, Tokyo Yutenji 1 東京都目黒区祐天寺1 | Traffic 交通 | | Tokyu Toyoko Line "Yutenji" walk 7 minutes Tokyu Toyoko Line "Nakameguro" walk 10 minutes JR Yamanote Line "Ebisu" walk 19 minutes 東急東横線「祐天寺」歩7分 東急東横線「中目黒」歩10分 JR山手線「恵比寿」歩19分
| Person in charge 担当者より | | Person in charge of real-estate and building FP Matsukawa Junpei Age: removes the anxiety of the 20s customers, As you can with a real estate purchase with confidence, We support every effort. Please do not hesitate to contact us no matter how trivial thing. 担当者宅建FP松川純平年齢:20代お客様の不安を取り除き、安心して不動産購入をして頂けるよう、全力でサポート致します。どんなに些細なことでもお気軽にお問い合わせくださいませ。 | Contact お問い合せ先 | | TEL: 0800-603-7091 [Toll free] mobile phone ・ Also available from PHS Caller ID is not notified Please contact the "saw SUUMO (Sumo)" If it does not lead, If the real estate company TEL:0800-603-7091【通話料無料】携帯電話・PHSからもご利用いただけます 発信者番号は通知されません 「SUUMO(スーモ)を見た」と問い合わせください つながらない方、不動産会社の方は
| Land of the right form 土地の権利形態 | | Ownership 所有権 | Time delivery 引き渡し時期 | | Immediate delivery allowed 即引渡し可 | Land category 地目 | | Residential land 宅地 | Use district 用途地域 | | One low-rise 1種低層 | Overview and notices その他概要・特記事項 | | Contact: Matsukawa Junpei 担当者:松川純平 | Company profile 会社概要 | | <Mediation> Governor of Tokyo (2) No. 086581 (Ltd.) ad cast Yubinbango150-0022 Shibuya-ku, Tokyo Ebisuminami 1-25-1 <仲介>東京都知事(2)第086581号(株)アドキャスト〒150-0022 東京都渋谷区恵比寿南1-25-1 |
Local land photo現地土地写真  Local (11 May 2013) Shooting
現地(2013年11月)撮影
 Local (11 May 2013) Shooting
現地(2013年11月)撮影
Local photos, including front road前面道路含む現地写真  Local (11 May 2013) Shooting
現地(2013年11月)撮影
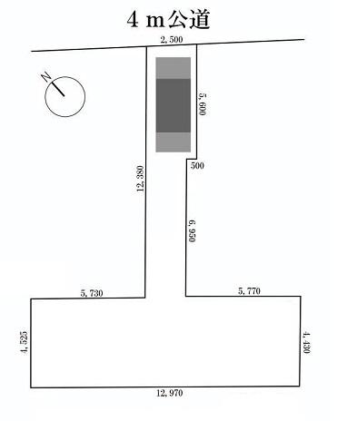
Compartment figure区画図  Land price 44,800,000 yen, Land area 88.01 sq m
土地価格4480万円、土地面積88.01m2
Local photos, including front road前面道路含む現地写真  Local (11 May 2013) Shooting
現地(2013年11月)撮影
Building plan example (floor plan)建物プラン例(間取り図)  Building plan example Building area 86.5 sq m
建物プラン例 建物面積86.5m2
Station駅  560m until Yutenji Station
祐天寺駅まで560m
 800m to Naka-Meguro Station
中目黒駅まで800m
Location
|