|
|
Meguro-ku, Tokyo
東京都目黒区
|
|
Tokyu Toyoko Line "Metropolitan University" walk 8 minutes
東急東横線「都立大学」歩8分
|
|
Vacant lot passes, No construction conditions, Building plan example there
更地渡し、建築条件なし、建物プラン例有り
|
|
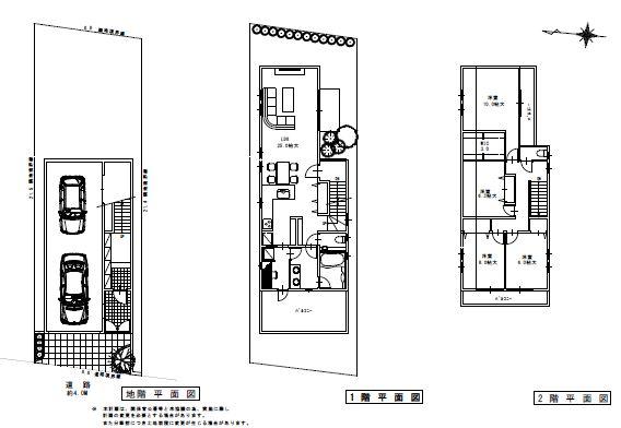
All two-compartment sold land was out to Meguro Kakinokizaka 1-chome! Current Status vacant lot ・ There is no building conditions, You can architecture in your favorite House manufacturer. 4LDK ・ There are building reference plan of the parking lot with two, Please feel free to contact us. A compartment 105,300,000 yen 145.81 sq m ・ B compartment 106,300,000 yen 145.65 sq m
目黒区柿の木坂1丁目に全2区画売地がでました!現況更地・建築条件ありません、お好きなハウスメーカーで建築できます。4LDK・駐車場2台付きの建物参考プランあります、お気軽にお問い合わせ下さい。 A区画 10530万円 145.81m2 ・B区画 10630万円 145.65m2
|
Features pickup 特徴ピックアップ | | Vacant lot passes / No construction conditions / Building plan example there 更地渡し /建築条件なし /建物プラン例有り |
Price 価格 | | 100 million 5.3 million yen 1億530万円 |
Building coverage, floor area ratio 建ぺい率・容積率 | | Fifty percent ・ Hundred percent 50%・100% |
Sales compartment 販売区画数 | | 1 compartment 1区画 |
Total number of compartments 総区画数 | | 2 compartment 2区画 |
Land area 土地面積 | | 145.81 sq m 145.81m2 |
Driveway burden-road 私道負担・道路 | | 0.47 sq m , West 3.7m width (contact the road width 7m) 0.47m2、西3.7m幅(接道幅7m) |
Land situation 土地状況 | | Vacant lot 更地 |
Address 住所 | | Meguro-ku, Tokyo Kakinokizaka 1 東京都目黒区柿の木坂1 |
Traffic 交通 | | Tokyu Toyoko Line "Metropolitan University" walk 8 minutes 東急東横線「都立大学」歩8分
|
Contact お問い合せ先 | | Eesu Capital Corporation Rays realistic Estate TEL: 0800-600-8175 [Toll free] mobile phone ・ Also available from PHS Caller ID is not notified Please contact the "saw SUUMO (Sumo)" If it does not lead, If the real estate company エーエスキャピタル(株)レイズリアルエステートTEL:0800-600-8175【通話料無料】携帯電話・PHSからもご利用いただけます 発信者番号は通知されません 「SUUMO(スーモ)を見た」と問い合わせください つながらない方、不動産会社の方は
|
Land of the right form 土地の権利形態 | | Ownership 所有権 |
Time delivery 引き渡し時期 | | Consultation 相談 |
Land category 地目 | | Residential land 宅地 |
Use district 用途地域 | | One low-rise 1種低層 |
Company profile 会社概要 | | <Mediation> Governor of Tokyo (2) the first 083,126 No. Eesu Capital Corporation Rays realistic Estate Yubinbango112-0012, Bunkyo-ku, Tokyo Otsuka 4-39-11 <仲介>東京都知事(2)第083126号エーエスキャピタル(株)レイズリアルエステート〒112-0012 東京都文京区大塚4-39-11 |