Land/Building » Kanto » Tokyo » Minato-ku


Minato-ku, Tokyo
Tokyo Metro Nanboku Line "platinum Takanawa" walk 7 minutes
4-wire 3-station use of access good corner lot! Property that can roof terrace!
Yang per good, Around traffic fewer, Maintained sidewalk, Free design support, Shaping land, Flat to the station, 2 along the line more accessible, Immediate delivery Allowed, No construction conditions, Vacant lot passes, Building plan example there
Features pickup
2 along the line more accessible / Vacant lot passes / Immediate delivery Allowed / Yang per good / Flat to the station / Around traffic fewer / Shaping land / No construction conditions / Maintained sidewalk / Building plan example there
Price
69,800,000 yen
Building coverage, floor area ratio
60% ・ 282 percent
Sales compartment
1 compartment
Total number of compartments
1 compartment
Land area
56.29 sq m (measured)
Driveway burden-road
Nothing, Southeast 4.7m width, Northeast 4m width
Land situation
Vacant lot
Address
Mita, Minato-ku, Tokyo 5
Traffic
Tokyo Metro Nanboku Line "platinum Takanawa" walk 7 minutes
JR Yamanote Line "Tamachi" walk 11 minutes
Tokyo Metro Nanboku Line "Juban" walk 13 minutes
Related links
[Related Sites of this company]
Contact
TEL: 0800-603-8969 [Toll free] mobile phone ・ Also available from PHS
Caller ID is not notified
Please contact the "saw SUUMO (Sumo)"
If it does not lead, If the real estate company
Land of the right form
Ownership
Time delivery
Immediate delivery allowed
Land category
Residential land
Use district
Semi-industrial
Other limitations
Set-back: already, Height district, Quasi-fire zones
Overview and notices
Facilities: Public Water Supply, This sewage, City gas
Company profile
<Marketing alliance (mediated)> Governor of Tokyo (2) No. 089271 (Ltd.) planning Estate Yubinbango153-0063 Meguro-ku, Tokyo Meguro 1-6-17


Compartment figure

Compartment figure. Land price 69,800,000 yen, Land area 56.29 sq m corner lot!
Land price 69,800,000 yen, Land area 56.29 sq m corner lot!

Building plan example (exterior photos)

Building plan example (exterior photos). Example of construction
Example of construction

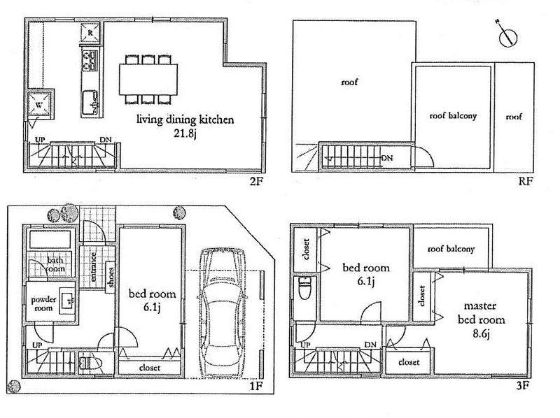
Building plan example (floor plan)

Building plan example (floor plan). 104.11 square meters 18 million yen including tax
104.11 square meters 18 million yen including tax

Building plan example (introspection photo)

Building plan example (introspection photo). Example of construction
Example of construction

Building plan example (introspection photo). Example of construction
Example of construction

Building plan example (introspection photo). Example of construction
Example of construction

Building plan example (introspection photo). Example of construction
Example of construction

Building plan example (introspection photo). Example of construction
Example of construction

Building plan example (introspection photo). Example of construction
Example of construction

Building plan example (introspection photo). Example of construction
Example of construction

Building plan example (introspection photo). Example of construction
Example of construction

Building plan example (introspection photo). Example of construction
Example of construction

Building plan example (introspection photo). Example of construction
Example of construction

Building plan example (introspection photo). Example of construction
Example of construction

Building plan example (introspection photo). Example of construction
Example of construction

Building plan example (introspection photo). Example of construction
Example of construction

Other local

Other local. Example of construction
Example of construction

Other local. Example of construction
Example of construction



Location