Land/Building » Kanto » Tokyo » Minato-ku


Minato-ku, Tokyo
Tokyo Metro Hibiya Line "Hiroo" walk 10 minutes
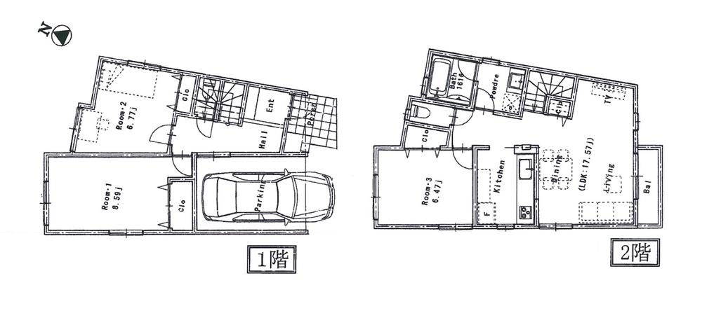
Reference plan is a two-story 3LDK + P and the three-storey 4LDK + P type There is No Mu building conditions South road Site area of ​​about 26.8 square meters Wide as between a population of about 5.8M, There is a sense of open
Hibiya line "Hiroo" a 10-minute walk from the station 3 line 3 station available good location It is aligned and large supermarkets in the surrounding area, Livable living environment Elementary and junior high school is near, Even school children is also safe [God 応小 ・ In Asahi]
Features pickup
2 along the line more accessible / Super close / Yang per good / Siemens south road / A quiet residential area / Around traffic fewer / Or more before road 6m / Shaping land / No construction conditions / Leafy residential area / City gas / Flat terrain
Price
81,800,000 yen
Building coverage, floor area ratio
80% ・ 400%
Sales compartment
1 compartment
Land area
88.83 sq m (26.87 square meters)
Driveway burden-road
Nothing, South 4m width, North 10m width
Land situation
Furuya There vacant lot passes
Address
Minato-ku, Tokyo platinum 6
Traffic
Tokyo Metro Hibiya Line "Hiroo" walk 10 minutes
Tokyo Metro Nanboku Line "Shiroganedai" walk 12 minutes
JR Yamanote Line "Ebisu" walk 14 minutes
Person in charge
[Regarding this property.] Shaping land between a population of about 5.8M Seongnam ・ Josai area Please Leave! ! Local contact information by area limited! Unpublished Property number! ! Contact us, please call! 03-3797-3468
Contact
TEL: 0800-601-5017 [Toll free] mobile phone ・ Also available from PHS
Caller ID is not notified
Please contact the "saw SUUMO (Sumo)"
If it does not lead, If the real estate company
Land of the right form
Ownership
Time delivery
Consultation
Land category
Residential land
Use district
Residential
Overview and notices
Facilities: Public Water Supply, This sewage, City gas
Company profile
<Mediation> Governor of Tokyo (1) No. 095623 (stock) Tokyo House Yubinbango158-0098 Setagaya-ku, Tokyo Kamiyoga 5-4-5


Compartment figure

Compartment figure. Land price 81,800,000 yen, Land area 88.83 sq m
Land price 81,800,000 yen, Land area 88.83 sq m

Building plan example (floor plan)

Building plan example (floor plan). Two-story reference plan
Two-story reference plan

Building plan example (floor plan). 3-story reference plan
3-story reference plan

Building plan example (Perth ・ Introspection)

Building plan example (Perth ・ Introspection). Example of construction
Example of construction

Building plan example (Perth ・ Introspection). Example of construction
Example of construction

Building plan example (Perth ・ Introspection). Example of construction
Example of construction

Building plan example (Perth ・ Introspection). Example of construction
Example of construction

Building plan example (Perth ・ Introspection). Example of construction
Example of construction

Building plan example (Perth ・ Introspection). Example of construction
Example of construction

Station

station. 1120m to Ebisu Station
1120m to Ebisu Station

station. 800m to Hiroo Station
800m to Hiroo Station

Supermarket

Supermarket. Maruetsu to Petit 240m
Maruetsu to Petit 240m

Drug store

Drug store. To drag Papas 720m
To drag Papas 720m

Bank

Bank. 750m to Bank of Tokyo-Mitsubishi UFJ
750m to Bank of Tokyo-Mitsubishi UFJ

Park

park. 620m to platinum park
620m to platinum park

Kindergarten ・ Nursery

kindergarten ・ Nursery. Minami-Azabu 435m to nursery school
Minami-Azabu 435m to nursery school

Primary school

Primary school. God 応小 160m to school
God 応小 160m to school

Junior high school

Junior high school. 450m to Asahi Junior High School
450m to Asahi Junior High School



Location