Land/Building » Kanto » Tokyo » Musashino


Musashino-shi, Tokyo
JR Chuo Line "Kichijoji" walk 16 minutes
A quiet residential area, Shaping land, Yang per good, Building plan example there, 2 along the line more accessible, No construction conditions, Vacant lot passes, Around traffic fewer, Leafy residential area, City gas, Flat terrain
A quiet residential area, Shaping land, Yang per good, Building plan example there, 2 along the line more accessible, No construction conditions, Vacant lot passes, Around traffic fewer, Leafy residential area, City gas, Flat terrain
Features pickup
2 along the line more accessible / Vacant lot passes / Yang per good / A quiet residential area / Around traffic fewer / Shaping land / No construction conditions / Leafy residential area / City gas / Flat terrain / Building plan example there
Price
69,800,000 yen
Building coverage, floor area ratio
40% ・ 80%
Sales compartment
1 compartment
Total number of compartments
2 compartment
Land area
154.23 sq m (46.65 square meters)
Driveway burden-road
Nothing, Southeast 3.8m width
Land situation
Furuya There vacant lot passes
Address
Musashino-shi, Tokyo Kichijojihigashi cho 3
Traffic
JR Chuo Line "Kichijoji" walk 16 minutes
JR Chuo Line "Nishiogikubo" walk 13 minutes
Contact
TEL: 03-5483-0777 Please contact as "saw SUUMO (Sumo)"
Land of the right form
Ownership
Time delivery
Consultation
Land category
Residential land
Use district
One low-rise
Other limitations
Set-back: already
Company profile
<Mediation> Governor of Tokyo (1) No. 089958 (Ltd.) Wise Land Associates Yubinbango158-0083 Setagaya-ku, Tokyo Okusawa 5-34-1


Compartment figure

Compartment figure. Land price 69,800,000 yen, Land area 154.23 sq m
Land price 69,800,000 yen, Land area 154.23 sq m

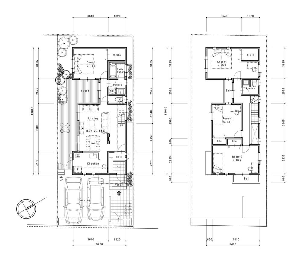
Building plan example (floor plan)

Building plan example (floor plan). Building plan example ( A ・ B Common) Building area 119.40 sq m
Building plan example ( A ・ B Common) Building area 119.40 sq m



Location