Land/Building » Kanto » Tokyo » Nakano
 
| | Nakano-ku, Tokyo 東京都中野区 |
| JR Chuo Line "Asagaya" walk 19 minutes JR中央線「阿佐ヶ谷」歩19分 |
| Seibu Shinjuku Line "Saginomiya" station walk 12 minutes ○ southwest corner lot of subdivision, 3LDK + living environment better by the loft of the reference plan Yes ○ low-rise residential area 西武新宿線「鷺ノ宮」駅徒歩12分○南西角地の分譲地、3LDK+ロフトの参考プラン有○低層住宅エリアにより住環境良好 |
| 2 along the line more accessible, Super close, Yang per good, A quiet residential area, Corner lot, City gas, Building plan example there 2沿線以上利用可、スーパーが近い、陽当り良好、閑静な住宅地、角地、都市ガス、建物プラン例有り |
Features pickup 特徴ピックアップ | | 2 along the line more accessible / Super close / Yang per good / A quiet residential area / Corner lot / City gas / Building plan example there 2沿線以上利用可 /スーパーが近い /陽当り良好 /閑静な住宅地 /角地 /都市ガス /建物プラン例有り | Price 価格 | | 35,500,000 yen ・ 38,800,000 yen 3550万円・3880万円 | Building coverage, floor area ratio 建ぺい率・容積率 | | Kenpei rate: 60%, Volume ratio: 150% 建ペい率:60%、容積率:150% | Sales compartment 販売区画数 | | 2 compartment 2区画 | Total number of compartments 総区画数 | | 2 compartment 2区画 | Land area 土地面積 | | 65.01 sq m (measured) 65.01m2(実測) | Driveway burden-road 私道負担・道路 | | Road width: South 3.5m ・ West 3.7m 道路幅:南3.5m・西3.7m | Land situation 土地状況 | | Vacant lot 更地 | Address 住所 | | Nakano-ku, Tokyo egret 1 東京都中野区白鷺1 | Traffic 交通 | | JR Chuo Line "Asagaya" walk 19 minutes Seibu Shinjuku Line "Saginomiya" walk 12 minutes Seibu Shinjuku Line "Toritsukasei" walk 17 minutes JR中央線「阿佐ヶ谷」歩19分 西武新宿線「鷺ノ宮」歩12分 西武新宿線「都立家政」歩17分
| Related links 関連リンク | | [Related Sites of this company] 【この会社の関連サイト】 | Person in charge 担当者より | | Person in charge of real-estate and building Nishioka Seondeok Age: 30s firmly ask the request of the Building Lots and Buildings Transaction chief qualified customers, Looking for the best of my home together. 担当者宅建西岡 善徳年齢:30代宅地建物取引主任資格者お客様のご要望をしっかり伺い、最高のマイホームを一緒にお探しします。 | Contact お問い合せ先 | | TEL: 0800-603-0512 [Toll free] mobile phone ・ Also available from PHS Caller ID is not notified Please contact the "saw SUUMO (Sumo)" If it does not lead, If the real estate company TEL:0800-603-0512【通話料無料】携帯電話・PHSからもご利用いただけます 発信者番号は通知されません 「SUUMO(スーモ)を見た」と問い合わせください つながらない方、不動産会社の方は
| Land of the right form 土地の権利形態 | | Ownership 所有権 | Building condition 建築条件 | | With 付 | Time delivery 引き渡し時期 | | Consultation 相談 | Land category 地目 | | Residential land 宅地 | Use district 用途地域 | | One low-rise 1種低層 | Overview and notices その他概要・特記事項 | | Contact: Nishioka Virtue, Facilities: Public Water Supply, This sewage, City gas 担当者:西岡 善徳、設備:公営水道、本下水、都市ガス | Company profile 会社概要 | | <Mediation> Governor of Tokyo (9) No. 041553 (Corporation) All Japan Real Estate Association (Corporation) metropolitan area real estate Fair Trade Council member Showa building (Ltd.) Yubinbango167-0053 Suginami-ku, Tokyo Nishiogiminami 3-18-15 <仲介>東京都知事(9)第041553号(公社)全日本不動産協会会員 (公社)首都圏不動産公正取引協議会加盟昭和建物(株)〒167-0053 東京都杉並区西荻南3-18-15 |
 Local land photo
現地土地写真
 The entire compartment Figure
全体区画図
 Local land photo
現地土地写真
 Local land photo
現地土地写真
 Local land photo
現地土地写真
 Local photos, including front road
前面道路含む現地写真
 Local photos, including front road
前面道路含む現地写真
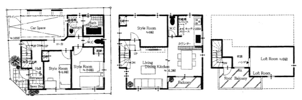
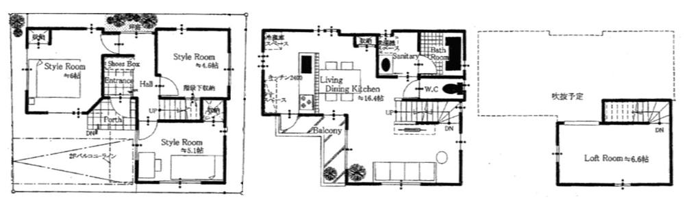
Building plan example (floor plan)建物プラン例(間取り図)  Building plan example (A section) 3LDK, Land price 38,800,000 yen, Land area 65.01 sq m , Building price 15 million yen, Building area 81.5 sq m
建物プラン例(A区画)3LDK、土地価格3880万円、土地面積65.01m2、建物価格1500万円、建物面積81.5m2
 Building plan example (B Building) 3LDK, Land price 35,500,000 yen, Land area 65.01 sq m , Building price 14.3 million yen, Building area 81.5 sq m
建物プラン例(B号棟)3LDK、土地価格3550万円、土地面積65.01m2、建物価格1430万円、建物面積81.5m2
Supermarketスーパー  MARUSHO until Asagaya shop 416m
MARUSHO阿佐谷店まで416m
 1036m until Super Bunkado Asagaya shop
スーパー文化堂阿佐ヶ谷店まで1036m
Junior high school中学校  Nakano 1219m to stand fourth junior high school
中野区立第四中学校まで1219m
Primary school小学校  Nakano 686m to stand Wakamiya elementary school
中野区立若宮小学校まで686m
Kindergarten ・ Nursery幼稚園・保育園  350m until Yamato nursery
大和保育園まで350m
 Saginomiya to school kindergarten 670m
鷺宮学園幼稚園まで670m
Hospital病院  388m until the medical corporation Association OsamuHisashikai thin hospital
医療法人社団修永会薄病院まで388m
 887m until the medical corporation Association Samsung Board Maeda hospital
医療法人社団三成会前田病院まで887m
Park公園  934m to bridle bridge park
馬橋公園まで934m
Location
|