Land/Building » Kanto » Tokyo » Nerima
 
| | Nerima-ku, Tokyo 東京都練馬区 |
| Seibu Shinjuku Line "Kamiigusa" walk 8 minutes 西武新宿線「上井草」歩8分 |
| ◇ per yang good ◇陽当り良好 |
Features pickup 特徴ピックアップ | | City gas / Building plan example there 都市ガス /建物プラン例有り | Price 価格 | | 40,800,000 yen 4080万円 | Building coverage, floor area ratio 建ぺい率・容積率 | | 60% ・ 300% 60%・300% | Sales compartment 販売区画数 | | 1 compartment 1区画 | Total number of compartments 総区画数 | | 7 compartment 7区画 | Land area 土地面積 | | 86.14 sq m (measured) 86.14m2(実測) | Driveway burden-road 私道負担・道路 | | Nothing, North 5m width 無、北5m幅 | Land situation 土地状況 | | Vacant lot 更地 | Address 住所 | | Nerima-ku, Tokyo Shimoshakujii 4 東京都練馬区下石神井4 | Traffic 交通 | | Seibu Shinjuku Line "Kamiigusa" walk 8 minutes 西武新宿線「上井草」歩8分
| Related links 関連リンク | | [Related Sites of this company] 【この会社の関連サイト】 | Contact お問い合せ先 | | TEL: 0800-603-3280 [Toll free] mobile phone ・ Also available from PHS Caller ID is not notified Please contact the "saw SUUMO (Sumo)" If it does not lead, If the real estate company TEL:0800-603-3280【通話料無料】携帯電話・PHSからもご利用いただけます 発信者番号は通知されません 「SUUMO(スーモ)を見た」と問い合わせください つながらない方、不動産会社の方は
| Land of the right form 土地の権利形態 | | Ownership 所有権 | Time delivery 引き渡し時期 | | Consultation 相談 | Land category 地目 | | Residential land 宅地 | Use district 用途地域 | | Two dwellings 2種住居 | Other limitations その他制限事項 | | Fire zones, Third kind altitude district gas ・ The sewage residential land within the pull-in already 防火地域、第3種高度地区 ガス・本下水宅地内引込済 | Overview and notices その他概要・特記事項 | | Facilities: Public Water Supply, This sewage, City gas 設備:公営水道、本下水、都市ガス | Company profile 会社概要 | | <Mediation> Governor of Tokyo (3) No. 080890 (Corporation) All Japan Real Estate Association (Corporation) metropolitan area real estate Fair Trade Council member platform (Ltd.) Yubinbango176-0011 Nerima-ku, Tokyo Toyotamakami 2-15-8 <仲介>東京都知事(3)第080890号(公社)全日本不動産協会会員 (公社)首都圏不動産公正取引協議会加盟プラットホーム(株)〒176-0011 東京都練馬区豊玉上2-15-8 |
Local land photo現地土地写真  2013 / 03 / 12 shooting
2013/03/12撮影
 2013 / 03 / 12 shooting
2013/03/12撮影
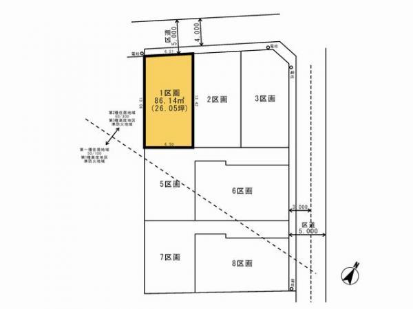
Compartment figure区画図  Land price 40,800,000 yen, Land area 86.14 sq m
土地価格4080万円、土地面積86.14m2
Local land photo現地土地写真  2013 / 03 / 12 shooting
2013/03/12撮影
Local photos, including front road前面道路含む現地写真  2013 / 03 / 12 shooting
2013/03/12撮影
Primary school小学校  350m 2011 until Nerima Shimoshakujii Elementary School / 11 / 21 shooting
練馬区立下石神井小学校まで350m 2011/11/21撮影
Junior high school中学校  320m to Nerima Shakujii Minami Junior High School 2011 / 11 / 21 shooting
練馬区立石神井南中学校まで320m 2011/11/21撮影
Other Environmental Photoその他環境写真  Seibu Shinjuku Line to "Kamiigusa" station 570m 2011 / 11 / 01 shooting
西武新宿線「上井草」駅まで570m 2011/11/01撮影
Kindergarten ・ Nursery幼稚園・保育園  Shakujii to south kindergarten 520m 2011 / 11 / 21 shooting
石神井南幼稚園まで520m 2011/11/21撮影
Hospital病院  Kuribayashi until gastroenterologist surgical 2130m 2011 / 12 / 18 shooting
栗林胃腸科外科まで2130m 2011/12/18撮影
Location
|