Land/Building » Kanto » Tokyo » Nerima
 
| | Nerima-ku, Tokyo 東京都練馬区 |
| Seibu Shinjuku Line "Kamiigusa" walk 8 minutes 西武新宿線「上井草」歩8分 |
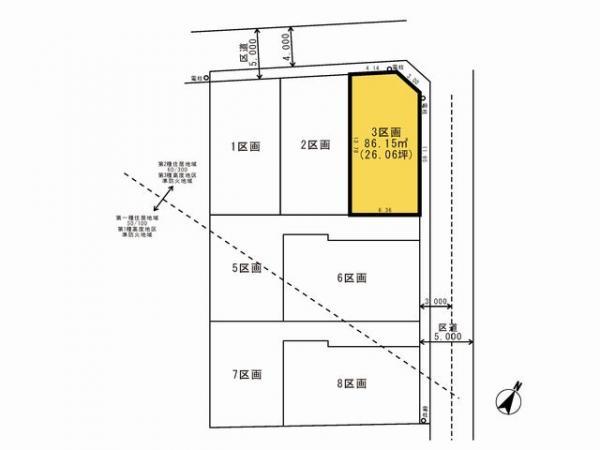
Price 価格 | | 43,800,000 yen 4380万円 | Building coverage, floor area ratio 建ぺい率・容積率 | | 60% ・ 300% 60%・300% | Sales compartment 販売区画数 | | 1 compartment 1区画 | Total number of compartments 総区画数 | | 7 compartment 7区画 | Land area 土地面積 | | 86.15 sq m (measured) 86.15m2(実測) | Driveway burden-road 私道負担・道路 | | Nothing, North 5m width, East 5m width 無、北5m幅、東5m幅 | Land situation 土地状況 | | Vacant lot 更地 | Address 住所 | | Nerima-ku, Tokyo Shimoshakujii 4 東京都練馬区下石神井4 | Traffic 交通 | | Seibu Shinjuku Line "Kamiigusa" walk 8 minutes 西武新宿線「上井草」歩8分
| Contact お問い合せ先 | | TEL: 0800-603-1162 [Toll free] mobile phone ・ Also available from PHS Caller ID is not notified Please contact the "saw SUUMO (Sumo)" If it does not lead, If the real estate company TEL:0800-603-1162【通話料無料】携帯電話・PHSからもご利用いただけます 発信者番号は通知されません 「SUUMO(スーモ)を見た」と問い合わせください つながらない方、不動産会社の方は
| Land of the right form 土地の権利形態 | | Ownership 所有権 | Time delivery 引き渡し時期 | | Consultation 相談 | Land category 地目 | | Residential land 宅地 | Use district 用途地域 | | Two dwellings 2種住居 | Other limitations その他制限事項 | | Fire zones, Third kind altitude district 防火地域、第3種高度地区 | Overview and notices その他概要・特記事項 | | Facilities: Public Water Supply, This sewage, City gas 設備:公営水道、本下水、都市ガス | Company profile 会社概要 | | <Mediation> Minister of Land, Infrastructure and Transport (5) No. 005084 (Corporation) All Japan Real Estate Association (Corporation) metropolitan area real estate Fair Trade Council member (Ltd.) best select Nerima shop Yubinbango176-0012 Nerima-ku, Tokyo Toyotamakita 4-23-8 <仲介>国土交通大臣(5)第005084号(公社)全日本不動産協会会員 (公社)首都圏不動産公正取引協議会加盟(株)ベストセレクト練馬店〒176-0012 東京都練馬区豊玉北4-23-8 |
 Local land photo
現地土地写真
 Local land photo
現地土地写真
Compartment figure区画図  Land price 43,800,000 yen, Land area 86.15 sq m
土地価格4380万円、土地面積86.15m2
 Local land photo
現地土地写真
 Local photos, including front road
前面道路含む現地写真
Primary school小学校  350m Nerima Shimoshakujii elementary school to elementary school
小学校まで350m 練馬区立下石神井小学校
Junior high school中学校  320m Nerima until junior high school Ward Shakujii Minami Junior High School
中学校まで320m 練馬区立石神井南中学校
Other Environmental Photoその他環境写真  To other environment photo 570m Seibu Shinjuku Line "Kamiigusa" station
その他環境写真まで570m 西武新宿線「上井草」駅
 770m to other Environmental Photo Shimoshakujii third nursery
その他環境写真まで770m 下石神井第三保育園
 2060m to other Environmental Photo Juntendo University Nerima Hospital
その他環境写真まで2060m 順天堂大学医学部附属練馬病院
Location
|