Land/Building » Kanto » Tokyo » Nerima


Nerima-ku, Tokyo
Seibu Ikebukuro Line "Hoya" walk 12 minutes
Can you be building in your favorite house manufacturer that there is no building conditions. The continued redeem in our building Trust Series.
It is close to the city, Yang per good, No construction conditions, Leafy residential area, Building plan example there, 2 along the line more accessible, Super close, Starting station, Shaping land
Features pickup
2 along the line more accessible / Super close / It is close to the city / Yang per good / Starting station / Shaping land / No construction conditions / Leafy residential area / Building plan example there
Price
26,800,000 yen
Building coverage, floor area ratio
Fifty percent ・ Hundred percent
Sales compartment
1 compartment
Land area
79.91 sq m (registration)
Driveway burden-road
Nothing, North 5m width
Land situation
Furuya There
Address
Nerima-ku, Tokyo Minamiōizumi 4
Traffic
Seibu Ikebukuro Line "Hoya" walk 12 minutes
Seibu Ikebukuro Line "Oizumigakuen" walk 18 minutes
Seibu Shinjuku Line "Musashi institutions" walk 26 minutes
Related links
[Related Sites of this company]
Person in charge
Rep Onuma It where I am willing to Yuji customers, It will be my above all of the vitality. In all sincerity, We will be happy to help.
Contact
TEL: 0120-948007 [Toll free] Please contact the "saw SUUMO (Sumo)"
Land of the right form
Ownership
Time delivery
Consultation
Land category
Residential land
Use district
One low-rise
Other limitations
Height district, Quasi-fire zones
Overview and notices
Contact: Onuma Yuji, Facilities: Public Water Supply, This sewage
Company profile
<Mediation> Minister of Land, Infrastructure and Transport (1) No. 008439 (Ltd.) My Town Hoya shop Yubinbango202-0012 Tokyo Nishitokyo Azumacho 4-15-13-101


Compartment figure

Compartment figure. Land price 26,800,000 yen, Land area 79.91 sq m compartment view
Land price 26,800,000 yen, Land area 79.91 sq m compartment view

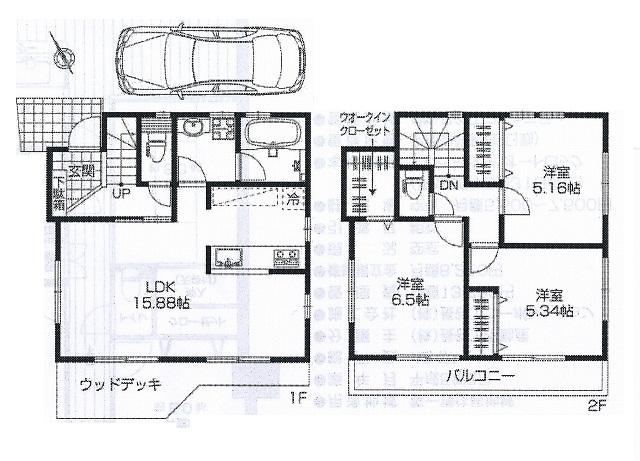
Building plan example (floor plan)

Building plan example (floor plan). Building plan example building area 79.88 sq m
Building plan example building area 79.88 sq m

Supermarket

Supermarket. Until Inageya 530m
Until Inageya 530m

Primary school

Primary school. 310m to Nerima Oizumi second elementary school
310m to Nerima Oizumi second elementary school

Junior high school

Junior high school. 1180m to Nerima Oizumi second junior high school
1180m to Nerima Oizumi second junior high school

Convenience store

Convenience store. FamilyMart Minamiōizumi 300m up to five-chome
FamilyMart Minamiōizumi 300m up to five-chome

Convenience store. 470m to Seven-Eleven Nerima Minamiōizumi 5-chome
470m to Seven-Eleven Nerima Minamiōizumi 5-chome



Location