41,800,000 yen, 106.68 sq m
Land/Building » Kanto » Tokyo » Nerima
 
| | Nerima-ku, Tokyo 東京都練馬区 |
| Toei Oedo Line "Toshimaen" walk 11 minutes 都営大江戸線「豊島園」歩11分 |
| ◇ ◆ ◇ 2-wire 2 Train Station is available! ! Green is rich in a quiet residential area. ◇ ◆ ◇ ◇◆◇ 2線2駅利用可能です!!緑豊かな閑静な住宅街です。 ◇◆◇ |
| 2 along the line more accessible, It is close to the city, A quiet residential area, Leafy residential area, Urban neighborhood, City gas 2沿線以上利用可、市街地が近い、閑静な住宅地、緑豊かな住宅地、都市近郊、都市ガス |
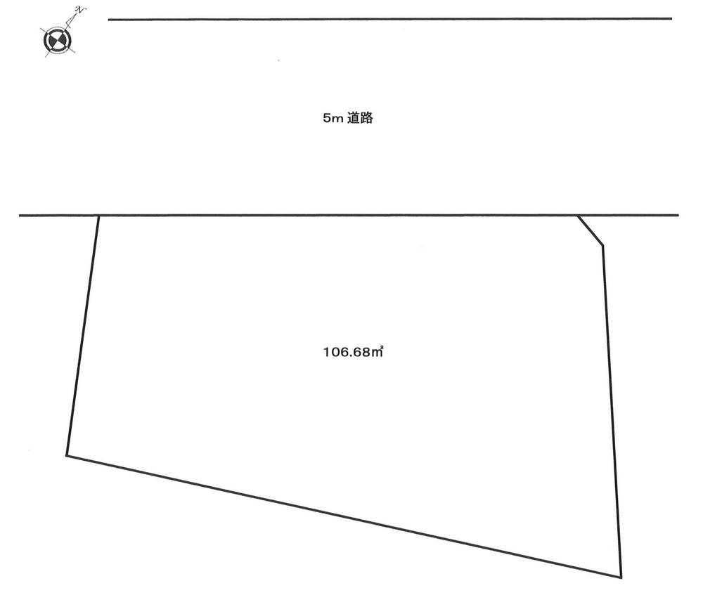
Features pickup 特徴ピックアップ | | 2 along the line more accessible / It is close to the city / A quiet residential area / Leafy residential area / Urban neighborhood / City gas 2沿線以上利用可 /市街地が近い /閑静な住宅地 /緑豊かな住宅地 /都市近郊 /都市ガス | Price 価格 | | 41,800,000 yen 4180万円 | Building coverage, floor area ratio 建ぺい率・容積率 | | Fifty percent ・ Hundred percent 50%・100% | Sales compartment 販売区画数 | | 1 compartment 1区画 | Land area 土地面積 | | 106.68 sq m 106.68m2 | Driveway burden-road 私道負担・道路 | | Nothing, Northeast 5m width 無、北東5m幅 | Land situation 土地状況 | | Furuya There 古家有り | Address 住所 | | Nerima-ku, Tokyo Mukaiyama 4 東京都練馬区向山4 | Traffic 交通 | | Toei Oedo Line "Toshimaen" walk 11 minutes Seibu Ikebukuro Line "Nakamurabashi" walk 12 minutes 都営大江戸線「豊島園」歩11分 西武池袋線「中村橋」歩12分
| Related links 関連リンク | | [Related Sites of this company] 【この会社の関連サイト】 | Contact お問い合せ先 | | TEL: 0800-808-4927 [Toll free] mobile phone ・ Also available from PHS Caller ID is not notified Please contact the "saw SUUMO (Sumo)" If it does not lead, If the real estate company TEL:0800-808-4927【通話料無料】携帯電話・PHSからもご利用いただけます 発信者番号は通知されません 「SUUMO(スーモ)を見た」と問い合わせください つながらない方、不動産会社の方は
| Land of the right form 土地の権利形態 | | Ownership 所有権 | Time delivery 引き渡し時期 | | Consultation 相談 | Land category 地目 | | Residential land 宅地 | Use district 用途地域 | | One low-rise 1種低層 | Overview and notices その他概要・特記事項 | | Facilities: Public Water Supply, This sewage, City gas 設備:公営水道、本下水、都市ガス | Company profile 会社概要 | | <Mediation> Governor of Tokyo (5) No. 070817 (Ltd.) Create Two one Yubinbango176-0021 Nerima-ku, Tokyo Nukui 1-48-4 <仲介>東京都知事(5)第070817号(株)クリエイトトゥーワン〒176-0021 東京都練馬区貫井1-48-4 |
Compartment figure区画図  Land price 41,800,000 yen, Land area 106.68 sq m
土地価格4180万円、土地面積106.68m2
Supermarketスーパー  Commodities Iida Nakamurabashi to the store 785m
コモディイイダ中村橋店まで785m
Location
|