Land/Building » Kanto » Tokyo » Nerima
 
| | Nerima-ku, Tokyo 東京都練馬区 |
| Seibu Shinjuku Line "Kami Shakujii" walk 18 minutes 西武新宿線「上石神井」歩18分 |
| ◆ Our seller / Tsubo 880,000 yen ◆ The Shakujii Park shaken the green near Envy of the town Shakujiidai 5-chome Popular sale middle school and park, Livable living environment that combines the convenience of commercial facilities! ◆ 当社売主 / 坪単価88万円台 ◆緑の揺らぐ石神井公園を傍に 羨望の街 石神井台5丁目 好評分譲中学校や公園、商業施設などの利便性を兼ね備えた暮らしやすい住環境! |
| "Shakujii Park" an 8-minute walk, "Super Life Shakujiidai store" 7-minute walk from building conditions, but there is no we plan 3 Tsuogo prepared "2 family houses," "Garage residence with a garden," "Rent combination housing"! If the car of multiple ownership, Ideal for those contemplating a two family house! Please feel free to contact us. 「石神井公園」徒歩8分、「スーパーライフ石神井台店」徒歩7分建築条件はございませんが 「2世帯住宅」 「ガーデン付ガレージ住居」 「賃貸併用住宅」のプラン3つをご用意いたしました!車を複数台所有の方、2世帯住宅を検討中の方に最適!お気軽にご相談下さいませ。 |
Features pickup 特徴ピックアップ | | 2 along the line more accessible / Land 50 square meters or more / It is close to Tennis Court / Super close / Yang per good / Flat to the station / Siemens south road / A quiet residential area / Around traffic fewer / Or more before road 6m / Leafy residential area / City gas / Flat terrain / Building plan example there 2沿線以上利用可 /土地50坪以上 /テニスコートが近い /スーパーが近い /陽当り良好 /駅まで平坦 /南側道路面す /閑静な住宅地 /周辺交通量少なめ /前道6m以上 /緑豊かな住宅地 /都市ガス /平坦地 /建物プラン例有り | Price 価格 | | 69,800,000 yen 6980万円 | Building coverage, floor area ratio 建ぺい率・容積率 | | Fifty percent ・ Hundred percent 50%・100% | Sales compartment 販売区画数 | | 1 compartment 1区画 | Total number of compartments 総区画数 | | 4 compartments 4区画 | Land area 土地面積 | | 260.09 sq m (78.67 tsubo) (Registration) 260.09m2(78.67坪)(登記) | Driveway burden-road 私道負担・道路 | | Nothing, South 6.2m width (contact the road width 4m) 無、南6.2m幅(接道幅4m) | Land situation 土地状況 | | Vacant lot 更地 | Address 住所 | | Nerima-ku, Tokyo Shakujiidai 5-3-16 東京都練馬区石神井台5-3-16 | Traffic 交通 | | Seibu Shinjuku Line "Kami Shakujii" walk 18 minutes Seibu Ikebukuro Line "Oizumigakuen" walk 20 minutes Izumi 36 "Koshinzuka" walk 2 minutes 西武新宿線「上石神井」歩18分 西武池袋線「大泉学園」歩20分 泉36「庚申塚」歩2分 | Related links 関連リンク | | [Related Sites of this company] 【この会社の関連サイト】 | Person in charge 担当者より | | Rep Miyazaki Ito Akira 担当者宮崎 伊都朗 | Contact お問い合せ先 | | GARYUU (Ltd.) TEL: 0800-600-7715 [Toll free] mobile phone ・ Also available from PHS Caller ID is not notified Please contact the "saw SUUMO (Sumo)" If it does not lead, If the real estate company GARYUU(株)TEL:0800-600-7715【通話料無料】携帯電話・PHSからもご利用いただけます 発信者番号は通知されません 「SUUMO(スーモ)を見た」と問い合わせください つながらない方、不動産会社の方は
| Land of the right form 土地の権利形態 | | Ownership 所有権 | Time delivery 引き渡し時期 | | Immediate delivery allowed 即引渡し可 | Land category 地目 | | Residential land 宅地 | Use district 用途地域 | | One low-rise 1種低層 | Other limitations その他制限事項 | | Quasi-fire zones, Site area minimum Yes 準防火地域、敷地面積最低限度有 | Overview and notices その他概要・特記事項 | | Contact: Miyazaki Ito Akira, Facilities: Public Water Supply, This sewage, City gas 担当者:宮崎 伊都朗、設備:公営水道、本下水、都市ガス | Company profile 会社概要 | | <Seller> Governor of Tokyo (1) the first 095,289 No. GARYUU (Ltd.) Yubinbango171-0031 Toshima-ku, Tokyo Mejiro 2-3-3 Mejiro Y building the fourth floor <売主>東京都知事(1)第095289号GARYUU(株)〒171-0031 東京都豊島区目白2-3-3 目白Yビル4階 |
Compartment figure区画図  Land price 69,800,000 yen, Land area 260.09 sq m garage housing ・ GARDEN plan Total floor area 148.22 sq m Including garage
土地価格6980万円、土地面積260.09m2 ガレージ住宅・GARDENプラン延床面積 148.22m2 車庫含む
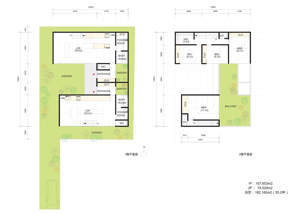
The entire compartment Figure全体区画図  Two-family home ・ GARDEN plan Total floor area 182.182 sq m
二世帯住宅・GARDENプラン 延床面積 182.182m2
Building plan example (floor plan)建物プラン例(間取り図)  Rent combination housing plan 243.45 sq m Inner 86.94 sq m owner dwelling unit
賃貸併用住宅プラン 243.45m2 内86.94m2オーナー住戸
Local land photo現地土地写真  Local (12 May 2013) Shooting
現地(2013年12月)撮影
Local photos, including front road前面道路含む現地写真  Local (12 May 2013) Shooting
現地(2013年12月)撮影
Streets around周辺の街並み  Siemens to property the entire surface of the road south 6.2m public roads
物件全面道路 南6.2m公道に面す
Otherその他  South contact road (December 2013) Shooting
南側接道(2013年12月)撮影
Supermarketスーパー  Until Life Shakujiidai store open until at 489m 22
ライフ石神井台店まで489m 22時まで営業
Drug storeドラッグストア  Create es ・ Open until at 346m 22 until Dee Nerima Shakujiidai shop
クリエイトエス・ディー練馬石神井台店まで346m 22時まで営業
Streets around周辺の街並み  Location up to 200m
ロケーションまで200m
 Location up to 200m
ロケーションまで200m
Park公園  600m until Shakujii Park
石神井公園まで600m
 Promenade on the banks of the pond 600m to Shakujii Park
石神井公園まで600m 池の畔の遊歩道
Streets around周辺の街並み  Location up to 200m
ロケーションまで200m
High school ・ College高校・高専  800m until the Waseda University High School
早稲田大学高等学園まで800m
Location
|