Land/Building » Kanto » Tokyo » Ota City
 
| | Ota-ku, Tokyo 東京都大田区 |
| Tokyu Toyoko Line "Denenchofu" walk 13 minutes 東急東横線「田園調布」歩13分 |
| Frontage 9m or more of the shaped land. It is located in the leafy residential area. 間口9m以上の整形地。緑豊かな住宅街に位置しております。 |
| 2 along the line more accessible, A quiet residential area, Shaping land, Around traffic fewer, Leafy residential area, Immediate delivery Allowed, City gas 2沿線以上利用可、閑静な住宅地、整形地、周辺交通量少なめ、緑豊かな住宅地、即引渡し可、都市ガス |
Features pickup 特徴ピックアップ | | 2 along the line more accessible / A quiet residential area / Around traffic fewer / Shaping land / Leafy residential area / City gas 2沿線以上利用可 /閑静な住宅地 /周辺交通量少なめ /整形地 /緑豊かな住宅地 /都市ガス | Price 価格 | | 54,800,000 yen 5480万円 | Building coverage, floor area ratio 建ぺい率・容積率 | | 40% ・ Hundred percent 40%・100% | Sales compartment 販売区画数 | | 1 compartment 1区画 | Total number of compartments 総区画数 | | 2 compartment 2区画 | Land area 土地面積 | | 134.2 sq m (registration) 134.2m2(登記) | Driveway burden-road 私道負担・道路 | | Nothing, South 3.2m width (contact the road width 9.4m) 無、南3.2m幅(接道幅9.4m) | Land situation 土地状況 | | Furuya There 古家有り | Address 住所 | | Ota-ku, Tokyo Denenchofu 5 東京都大田区田園調布5 | Traffic 交通 | | Tokyu Toyoko Line "Denenchofu" walk 13 minutes Tokyu Meguro Line "Denenchofu" walk 13 minutes 東急東横線「田園調布」歩13分 東急目黒線「田園調布」歩13分
| Related links 関連リンク | | [Related Sites of this company] 【この会社の関連サイト】 | Person in charge 担当者より | | [Regarding this property.] Wide, not less than frontage 9m, Green is rich and laid-back living environment. 【この物件について】間口9m以上と広く、緑豊かでのんびりとした住環境です。 | Contact お問い合せ先 | | TEL: 0800-603-1956 [Toll free] mobile phone ・ Also available from PHS Caller ID is not notified Please contact the "saw SUUMO (Sumo)" If it does not lead, If the real estate company TEL:0800-603-1956【通話料無料】携帯電話・PHSからもご利用いただけます 発信者番号は通知されません 「SUUMO(スーモ)を見た」と問い合わせください つながらない方、不動産会社の方は
| Land of the right form 土地の権利形態 | | Ownership 所有権 | Building condition 建築条件 | | With 付 | Time delivery 引き渡し時期 | | Consultation 相談 | Land category 地目 | | Residential land 宅地 | Use district 用途地域 | | One low-rise 1種低層 | Other limitations その他制限事項 | | Setback: upon, Height district, Scenic zone セットバック:要、高度地区、風致地区 | Overview and notices その他概要・特記事項 | | Facilities: Public Water Supply, This sewage, City gas 設備:公営水道、本下水、都市ガス | Company profile 会社概要 | | <Mediation> Governor of Tokyo (6) No. 060665 (Corporation) Tokyo Metropolitan Government Building Lots and Buildings Transaction Business Association (Corporation) metropolitan area real estate Fair Trade Council member (Ltd.) Uptown Jiyugaoka Yubinbango152-0023 Meguro-ku, Tokyo Yakumo 3-12-10 <仲介>東京都知事(6)第060665号(公社)東京都宅地建物取引業協会会員 (公社)首都圏不動産公正取引協議会加盟(株)アップタウン自由が丘店〒152-0023 東京都目黒区八雲3-12-10 |
Local land photo現地土地写真  Current Status: Building There
現況:建物有り
 Current Status: Building There
現況:建物有り
 Local land photo
現地土地写真
Local photos, including front road前面道路含む現地写真  Local (March 2013) Shooting
現地(2013年3月)撮影
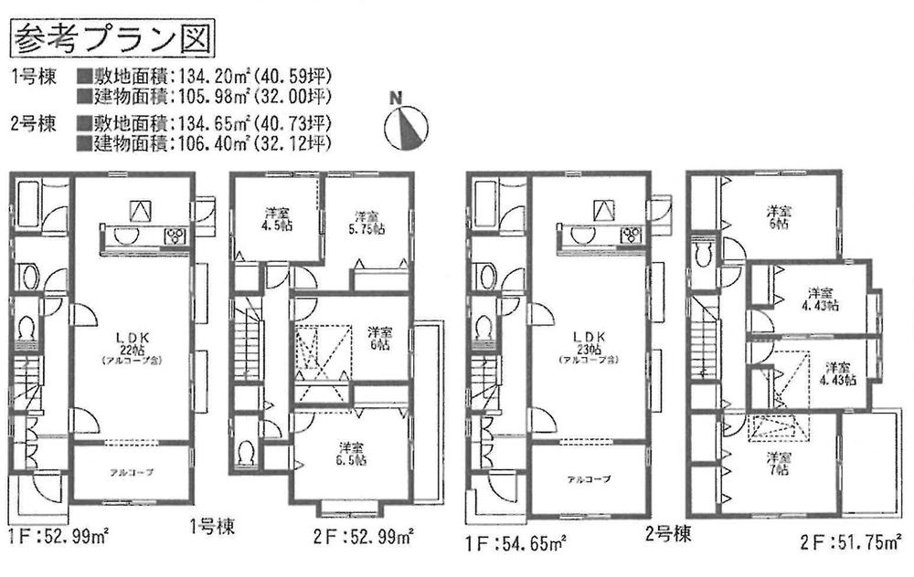
Building plan example (floor plan)建物プラン例(間取り図)  Building plan example (No. 1 place) Building Price 16 million yen, Building area 105.99 sq m
建物プラン例(1号地)建物価格 1600万円、建物面積105.99m2
Station駅  "Denenchofu" 1040m to the station
「田園調布」駅まで1040m
The entire compartment Figure全体区画図  Compartment figure
区画図
Streets around周辺の街並み  "Denenchofu" Station 960m to Ginkgo trees
「田園調布」駅前 銀杏並木まで960m
Other Environmental Photoその他環境写真  80m to the banks of the Tama River
多摩川の土手まで80m
Park公園  600m to Horai park
宝来公園まで600m
Location
|