175 million yen, 293.67 sq m
Land/Building » Kanto » Tokyo » Ota City
 
| | Ota-ku, Tokyo 東京都大田区 |
| Tokyu Ikegami Line "Ontakesan" walk 5 minutes 東急池上線「御嶽山」歩5分 |
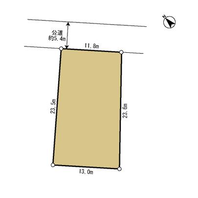
Price 価格 | | 175 million yen 1億7500万円 | Building coverage, floor area ratio 建ぺい率・容積率 | | Fifty percent ・ Hundred percent 50%・100% | Sales compartment 販売区画数 | | 1 compartment 1区画 | Land area 土地面積 | | 293.67 sq m (registration) 293.67m2(登記) | Driveway burden-road 私道負担・道路 | | Nothing, Northeast 5.4m width 無、北東5.4m幅 | Land situation 土地状況 | | Vacant lot 更地 | Address 住所 | | Ota-ku, Tokyo Den'enchofuhon cho 東京都大田区田園調布本町 | Traffic 交通 | | Tokyu Ikegami Line "Ontakesan" walk 5 minutes Tamagawa Tokyu "Numabe" walk 10 minutes 東急池上線「御嶽山」歩5分 東急多摩川線「沼部」歩10分
| Person in charge 担当者より | | Person in charge of Soma Hiroshi 担当者相馬 博 | Contact お問い合せ先 | | Tokyu Livable (Ltd.) Income Sales Department Corporate Sales Center TEL: 03-3463-4043 Please contact as "saw SUUMO (Sumo)" 東急リバブル(株)法人営業部法人営業センターTEL:03-3463-4043「SUUMO(スーモ)を見た」と問い合わせください | Land of the right form 土地の権利形態 | | Ownership 所有権 | Time delivery 引き渡し時期 | | Consultation 相談 | Land category 地目 | | Residential land 宅地 | Use district 用途地域 | | One low-rise 1種低層 | Overview and notices その他概要・特記事項 | | Contact: Soma Hiroshi 担当者:相馬 博 | Company profile 会社概要 | | <Mediation> Minister of Land, Infrastructure and Transport (10) Article 002611 No. Tokyu Livable (Ltd.) Income Sales Department Corporate Sales Center 3965, Shibuya-ku, Tokyo Dogenzaka 1-12-1 Shibuya Mark City West 11th floor <仲介>国土交通大臣(10)第002611号東急リバブル(株)法人営業部法人営業センター〒150-0043 東京都渋谷区道玄坂1-12-1 渋谷マークシティウエスト11階 |
Local land photo現地土地写真  Local Photos
現地写真
 Compartment figure
区画図
Location
|