Land/Building » Kanto » Tokyo » Ota City
 
| | Ota-ku, Tokyo 東京都大田区 |
| JR Keihin Tohoku Line "Kamata" walk 9 minutes JR京浜東北線「蒲田」歩9分 |
| 2 along the line more accessible, Corner lot, Flat terrain, Building plan example there 2沿線以上利用可、角地、平坦地、建物プラン例有り |
Features pickup 特徴ピックアップ | | 2 along the line more accessible / Corner lot / Flat terrain / Building plan example there 2沿線以上利用可 /角地 /平坦地 /建物プラン例有り | Price 価格 | | 34,800,000 yen 3480万円 | Building coverage, floor area ratio 建ぺい率・容積率 | | 70% ・ 200% 70%・200% | Sales compartment 販売区画数 | | 1 compartment 1区画 | Land area 土地面積 | | 55 sq m (16.63 square meters) 55m2(16.63坪) | Driveway burden-road 私道負担・道路 | | Nothing, East 5.2m width, North 4m width 無、東5.2m幅、北4m幅 | Land situation 土地状況 | | Vacant lot 更地 | Address 住所 | | Ota-ku, Tokyo Nishikamata 4 東京都大田区西蒲田4 | Traffic 交通 | | JR Keihin Tohoku Line "Kamata" walk 9 minutes Tokyu Ikegami Line "Hasunuma" walk 10 minutes JR京浜東北線「蒲田」歩9分 東急池上線「蓮沼」歩10分
| Related links 関連リンク | | [Related Sites of this company] 【この会社の関連サイト】 | Person in charge 担当者より | | Rep Nishizaki I want 20's soon house: Akane age, Customers who suffer even a little like you want to Relocation! one time, Why not find with us? , You know immediately because the yellow buildings along the line! We customers of your visit and look forward to! 担当者西崎 茜年齢:20代そろそろお家がほしい、住み替えしたいなど少しでもお悩みのお客様!一度、私達と一緒に探してみませんか?蒲田駅西口、線路沿いの黄色い建物なのですぐわかりますよ!お客様のお越しを心よりお待ちしています! | Contact お問い合せ先 | | TEL: 0800-603-3323 [Toll free] mobile phone ・ Also available from PHS Caller ID is not notified Please contact the "saw SUUMO (Sumo)" If it does not lead, If the real estate company TEL:0800-603-3323【通話料無料】携帯電話・PHSからもご利用いただけます 発信者番号は通知されません 「SUUMO(スーモ)を見た」と問い合わせください つながらない方、不動産会社の方は
| Land of the right form 土地の権利形態 | | Ownership 所有権 | Time delivery 引き渡し時期 | | Consultation 相談 | Land category 地目 | | Residential land 宅地 | Use district 用途地域 | | One dwelling 1種住居 | Overview and notices その他概要・特記事項 | | Contact: Nishizaki madder 担当者:西崎 茜 | Company profile 会社概要 | | <Mediation> Governor of Tokyo (3) No. 082,184 (one company) Real Estate Association (Corporation) metropolitan area real estate Fair Trade Council member Century 21 (Corporation) Housing Plaza home sales Yubinbango144-0051 Ota-ku, Tokyo Nishikamata 7-1-3 Century Stella Bill <仲介>東京都知事(3)第082184号(一社)不動産協会会員 (公社)首都圏不動産公正取引協議会加盟センチュリー21(株)ハウジングプラザ住宅販売〒144-0051 東京都大田区西蒲田7-1-3 センチュリーステラビル |
Local land photo現地土地写真  Local (September 26, 2013) Shooting
現地(2013年9月26日)撮影
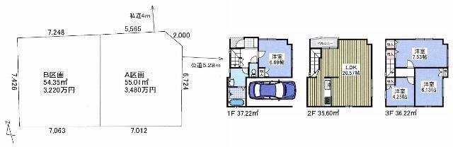
Compartment view + building plan example区画図+建物プラン例  Building plan example, Land price 34,800,000 yen, Land area 55 sq m
建物プラン例、土地価格3480万円、土地面積55m2
 Other local
その他現地
Local photos, including front road前面道路含む現地写真  Site (July 30, 2013) Shooting
現地(2013年7月30日)撮影
Supermarketスーパー  Maibasuketto Nishikamata 335m up to 5-chome
まいばすけっと西蒲田5丁目店まで335m
 Other local
その他現地
Junior high school中学校  1019m to Ota Ward Hasunuma Junior High School
大田区立蓮沼中学校まで1019m
Primary school小学校  Ota Ward Aioi to elementary school 333m
大田区立相生小学校まで333m
Location
|