Land/Building » Kanto » Tokyo » Ota City
 
| | Ota-ku, Tokyo 東京都大田区 |
| Tokyu Toyoko Line "Denenchofu" walk 12 minutes 東急東横線「田園調布」歩12分 |
| Located in a quiet mansion district of Den-en Chofu is the introduction of the land. Neighborhood is a quiet environment that lined the mansion room of Denenchofu unique. 田園調布の閑静な邸宅街に位置する土地のご紹介です。周辺は田園調布ならではのゆとりある邸宅が立ち並ぶ静かな環境です。 |
| Site facing the south 6m road, So we have about 2.2m higher than the road is good per yang. Also, Local is the construction has been to be able to park in a parallel two cars. 南側6m道路に面した敷地は、道路より約2.2m高くなっておりますので陽当たり良好です。また、現地は車を2台並列で駐車出来るように造成済みです。 |
Features pickup 特徴ピックアップ | | 2 along the line more accessible / Immediate delivery Allowed / Yang per good / Siemens south road / A quiet residential area / Or more before road 6m / Leafy residential area / Good view / Located on a hill / Building plan example there 2沿線以上利用可 /即引渡し可 /陽当り良好 /南側道路面す /閑静な住宅地 /前道6m以上 /緑豊かな住宅地 /眺望良好 /高台に立地 /建物プラン例有り | Price 価格 | | 86,800,000 yen 8680万円 | Building coverage, floor area ratio 建ぺい率・容積率 | | 40% ・ 80% 40%・80% | Sales compartment 販売区画数 | | 1 compartment 1区画 | Land area 土地面積 | | 163.81 sq m (measured) 163.81m2(実測) | Driveway burden-road 私道負担・道路 | | 19.5 sq m , South 6m width (contact the road width 10.3m) 19.5m2、南6m幅(接道幅10.3m) | Land situation 土地状況 | | Vacant lot 更地 | Address 住所 | | Ota-ku, Tokyo Denenchofu 5 東京都大田区田園調布5 | Traffic 交通 | | Tokyu Toyoko Line "Denenchofu" walk 12 minutes Tokyu Meguro Line "Denenchofu" walk 12 minutes Oimachi Line Tokyu "Kuhonbutsu" walk 11 minutes 東急東横線「田園調布」歩12分 東急目黒線「田園調布」歩12分 東急大井町線「九品仏」歩11分
| Related links 関連リンク | | [Related Sites of this company] 【この会社の関連サイト】 | Person in charge 担当者より | | The person in charge Masuda Seiji Age: always do not forget the fact that it may be a big shopping once in a lifetime for the 30's customers, I try while aware of the seriousness of the responsibility. We will acquaintance even if it takes convincing many years until the property is found to be! 担当者増田 征治年齢:30代お客様にとって一生に一度の大きな買い物になるかもしれないという事を常に忘れず、責任の重大さを意識しながら心がけています。納得する物件が見つかるまで何年かかってもお付き合いさせていただきます! | Contact お問い合せ先 | | TEL: 0800-603-2577 [Toll free] mobile phone ・ Also available from PHS Caller ID is not notified Please contact the "saw SUUMO (Sumo)" If it does not lead, If the real estate company TEL:0800-603-2577【通話料無料】携帯電話・PHSからもご利用いただけます 発信者番号は通知されません 「SUUMO(スーモ)を見た」と問い合わせください つながらない方、不動産会社の方は
| Land of the right form 土地の権利形態 | | Ownership 所有権 | Time delivery 引き渡し時期 | | Immediate delivery allowed 即引渡し可 | Land category 地目 | | Residential land 宅地 | Use district 用途地域 | | One low-rise 1種低層 | Overview and notices その他概要・特記事項 | | Contact: Masuda Seiji, Facilities: Public Water Supply, This sewage, City gas 担当者:増田 征治、設備:公営水道、本下水、都市ガス | Company profile 会社概要 | | <Mediation> Minister of Land, Infrastructure and Transport (2) No. 007450 (Corporation) Tokyo Metropolitan Government Building Lots and Buildings Transaction Business Association (Corporation) metropolitan area real estate Fair Trade Council member (Ltd.) Mibu Corporation Sakurashinmachi shop Yubinbango154-0015 Setagaya-ku, Tokyo Sakurashinmachi 1-12-13 <仲介>国土交通大臣(2)第007450号(公社)東京都宅地建物取引業協会会員 (公社)首都圏不動産公正取引協議会加盟(株)ミブコーポレーション桜新町店〒154-0015 東京都世田谷区桜新町1-12-13 |
Local land photo現地土地写真  Selling local
販売現地
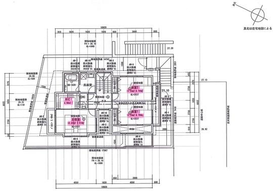
Building plan example (floor plan)建物プラン例(間取り図)  Building reference plan (second floor ・ 61.27?)
建物参考プラン(2階・61.27?)
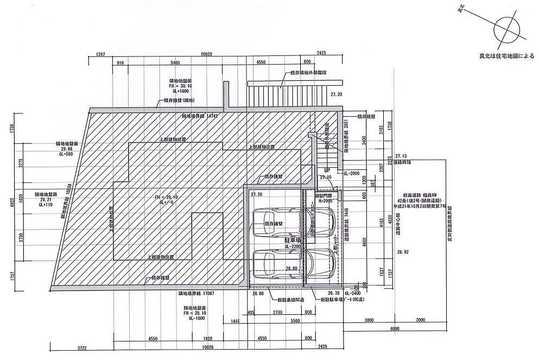
 Building reference plan (basement garage ・ 30.02?)
建物参考プラン(地階車庫・30.02?)
Local photos, including front road前面道路含む現地写真  Designed front road
デザインされた前面道路
Compartment view + building plan example区画図+建物プラン例  Building plan example, Land price 86,800,000 yen, Land area 163.81 sq m building reference plan (first floor ・ 65.41?)
建物プラン例、土地価格8680万円、土地面積163.81m2 建物参考プラン(1階・65.41?)
Primary school小学校  Ota Ward Denenchofu to elementary school 1090m
大田区立田園調布小学校まで1090m
View photos from the local現地からの眺望写真  View from local
現地からの眺望
Otherその他  Streets around that beautiful-appointed
綺麗に整った周辺の街並み
Junior high school中学校  1180m to Ota Ward Denenchofu Junior High School
大田区立田園調布中学校まで1180m
Location
|