Land/Building » Kanto » Tokyo » Ota City


Ota-ku, Tokyo
Tokyu Ikegami Line "Kugahara" walk 2 minutes
It will Hatanodai 3-chome selling land. Please feel free to tell us because you look forward, such as floor plans creation of the reference plan and the hope of building.
Yang per good, Around traffic fewer, Maintained sidewalk, Super close, Free design support, Shaping land, Flat terrain, Flat to the station, 2 along the line more accessible, Vacant lot passes, Building plan example there
Features pickup
2 along the line more accessible / Vacant lot passes / Super close / Yang per good / Flat to the station / Around traffic fewer / Shaping land / Maintained sidewalk / Flat terrain / Building plan example there
Price
34,800,000 yen
Building coverage, floor area ratio
60% ・ 200%
Sales compartment
1 compartment
Total number of compartments
2 compartment
Land area
54.85 sq m (registration)
Driveway burden-road
Nothing, West 4m width (contact the road width 4.7m)
Land situation
Furuya There vacant lot passes
Address
Ota-ku, Tokyo Higashimine cho
Traffic
Tokyu Ikegami Line "Kugahara" walk 2 minutes
Tokyu Ikegami Line "Ontakesan" walk 8 minutes
Tamagawa Tokyu "Unoki" walk 8 minutes
Related links
[Related Sites of this company]
Person in charge
Rep Iwase
Contact
TEL: 0800-603-8969 [Toll free] mobile phone ・ Also available from PHS
Caller ID is not notified
Please contact the "saw SUUMO (Sumo)"
If it does not lead, If the real estate company
Land of the right form
Ownership
Time delivery
Consultation
Land category
Residential land
Use district
One dwelling
Other limitations
Set-back: already, Height district, Quasi-fire zones
Overview and notices
Contact: Iwase, Facilities: Public Water Supply, This sewage, City gas
Company profile
<Marketing alliance (mediated)> Governor of Tokyo (2) No. 089271 (Ltd.) planning Estate Yubinbango153-0063 Meguro-ku, Tokyo Meguro 1-6-17


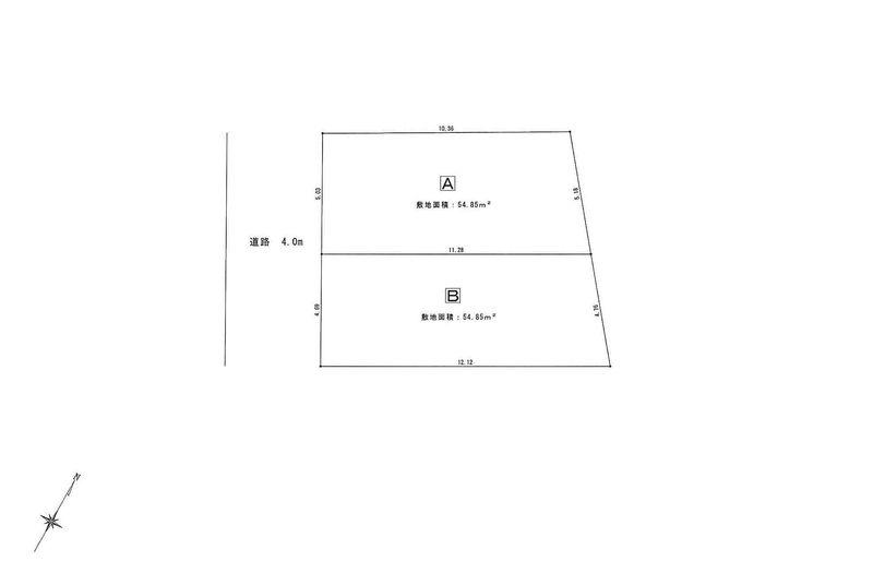
Compartment figure

Compartment figure. Land price 34,800,000 yen, Land area 54.85 sq m
Land price 34,800,000 yen, Land area 54.85 sq m

Building plan example (floor plan)

Building plan example (floor plan). 83.21 square meters plan price 15 million
83.21 square meters plan price 15 million

Other building plan example

Other building plan example. Example of construction
Example of construction

Other building plan example. Example of construction
Example of construction

Other building plan example. Example of construction
Example of construction

Park

park. 1078m caption to East Chofu park
1078m caption to East Chofu park

Other building plan example

Other building plan example. Example of construction
Example of construction

Other building plan example. Example of construction
Example of construction

Other building plan example. Example of construction
Example of construction

Other building plan example. Example of construction
Example of construction



Location