Land/Building » Kanto » Tokyo » Ota City
 
| | Ota-ku, Tokyo 東京都大田区 |
| Tokyu Ikegami Line "Hasunuma" walk 6 minutes 東急池上線「蓮沼」歩6分 |
| 2 along the line more accessible, Yang per good, Siemens south road, Shaping land, Building plan example there 2沿線以上利用可、陽当り良好、南側道路面す、整形地、建物プラン例有り |
Features pickup 特徴ピックアップ | | 2 along the line more accessible / Yang per good / Siemens south road / Shaping land / Building plan example there 2沿線以上利用可 /陽当り良好 /南側道路面す /整形地 /建物プラン例有り | Price 価格 | | 31,272,000 yen 3127万2000円 | Building coverage, floor area ratio 建ぺい率・容積率 | | 60% ・ 200% 60%・200% | Sales compartment 販売区画数 | | 1 compartment 1区画 | Land area 土地面積 | | 46 sq m (13.91 square meters) 46m2(13.91坪) | Driveway burden-road 私道負担・道路 | | Nothing, South 3.3m width 無、南3.3m幅 | Land situation 土地状況 | | Vacant lot 更地 | Address 住所 | | Ota-ku, Tokyo Higashiyaguchi 3 東京都大田区東矢口3 | Traffic 交通 | | Tokyu Ikegami Line "Hasunuma" walk 6 minutes Tamagawa Tokyu "Wataru Yaguchi" walk 7 minutes 東急池上線「蓮沼」歩6分 東急多摩川線「矢口渡」歩7分
| Related links 関連リンク | | [Related Sites of this company] 【この会社の関連サイト】 | Person in charge 担当者より | | Rep Shimoda 嗣佳 Age: 30 Daigyokai Experience: 14 years anything please feel free to contact us. 担当者下田 嗣佳年齢:30代業界経験:14年何でも気軽にご相談して下さい。 | Contact お問い合せ先 | | TEL: 0800-603-3323 [Toll free] mobile phone ・ Also available from PHS Caller ID is not notified Please contact the "saw SUUMO (Sumo)" If it does not lead, If the real estate company TEL:0800-603-3323【通話料無料】携帯電話・PHSからもご利用いただけます 発信者番号は通知されません 「SUUMO(スーモ)を見た」と問い合わせください つながらない方、不動産会社の方は
| Land of the right form 土地の権利形態 | | Ownership 所有権 | Building condition 建築条件 | | With 付 | Time delivery 引き渡し時期 | | Consultation 相談 | Land category 地目 | | Residential land 宅地 | Use district 用途地域 | | One dwelling 1種住居 | Overview and notices その他概要・特記事項 | | Contact: Shimoda 嗣佳 担当者:下田 嗣佳 | Company profile 会社概要 | | <Mediation> Governor of Tokyo (3) No. 082,184 (one company) Real Estate Association (Corporation) metropolitan area real estate Fair Trade Council member Century 21 (Corporation) Housing Plaza home sales Yubinbango144-0051 Ota-ku, Tokyo Nishikamata 7-1-3 Century Stella Bill <仲介>東京都知事(3)第082184号(一社)不動産協会会員 (公社)首都圏不動産公正取引協議会加盟センチュリー21(株)ハウジングプラザ住宅販売〒144-0051 東京都大田区西蒲田7-1-3 センチュリーステラビル |
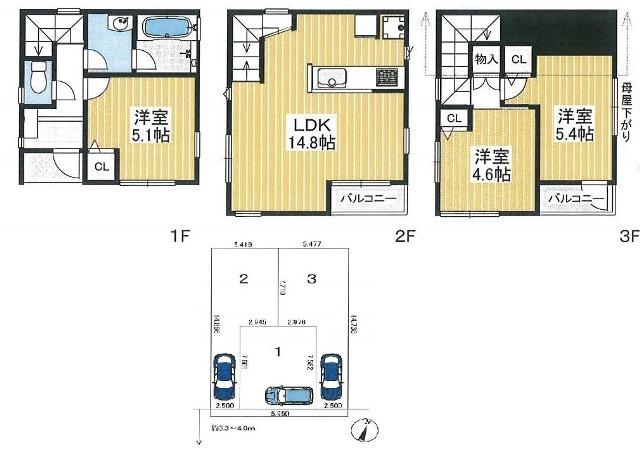
Compartment view + building plan example区画図+建物プラン例  Building plan example, Land price 31,272,000 yen, Land area 46 sq m , Building price 12,588,000 yen, Building area 73.04 sq m
建物プラン例、土地価格3127万2000円、土地面積46m2、建物価格1258万8000円、建物面積73.04m2
Local land photo現地土地写真  H25.11.15 local
H25.11.15現地
Local photos, including front road前面道路含む現地写真  H25.11.15 local
H25.11.15現地
Convenience storeコンビニ  514m to poplar Higashiyaguchi shop
ポプラ東矢口店まで514m
 Other local
その他現地
High school ・ College高校・高専  Private Nittaiebara until high school 853m
私立日体荏原高校まで853m
Primary school小学校  Ota Ward Yaguchi 140m to East Elementary School
大田区立矢口東小学校まで140m
Location
|