Land/Building » Kanto » Tokyo » Setagaya
 
| | Setagaya-ku, Tokyo 東京都世田谷区 |
| Tokyu Toyoko Line "Jiyugaoka" walk 3 minutes 東急東横線「自由が丘」歩3分 |
| ■ Jiyugaoka Station 3-minute walk ■ A quiet residential area a kind of low-rise ■自由が丘駅徒歩3分■一種低層の閑静な住宅街 |
| We will create a building plan. Please feel free to contact us. 建物プラン作成致します。お気軽にお問い合わせ下さい。 |
Features pickup 特徴ピックアップ | | 2 along the line more accessible / Vacant lot passes / Immediate delivery Allowed / It is close to Tennis Court / Super close / It is close to the city / Yang per good / Flat to the station / A quiet residential area / Around traffic fewer / Starting station / Shaping land / No construction conditions / Urban neighborhood / City gas 2沿線以上利用可 /更地渡し /即引渡し可 /テニスコートが近い /スーパーが近い /市街地が近い /陽当り良好 /駅まで平坦 /閑静な住宅地 /周辺交通量少なめ /始発駅 /整形地 /建築条件なし /都市近郊 /都市ガス | Price 価格 | | 78,800,000 yen ~ 86,800,000 yen 7880万円 ~ 8680万円 | Building coverage, floor area ratio 建ぺい率・容積率 | | Kenpei rate: 60%, Volume ratio: 150% 建ペい率:60%、容積率:150% | Sales compartment 販売区画数 | | 3 compartment 3区画 | Total number of compartments 総区画数 | | 3 compartment 3区画 | Land area 土地面積 | | 86.98 sq m ~ 89.71 sq m (measured) 86.98m2 ~ 89.71m2(実測) | Driveway burden-road 私道負担・道路 | | Road width: 4m, Asphaltic pavement 道路幅:4m、アスファルト舗装 | Land situation 土地状況 | | Vacant lot 更地 | Address 住所 | | Setagaya-ku, Tokyo Okusawa 5 東京都世田谷区奥沢5 | Traffic 交通 | | Tokyu Toyoko Line "Jiyugaoka" walk 3 minutes Tokyu Meguro Line "Okusawa" walk 7 minutes Oimachi Line Tokyu "Kuhonbutsu" walk 10 minutes 東急東横線「自由が丘」歩3分 東急目黒線「奥沢」歩7分 東急大井町線「九品仏」歩10分
| Related links 関連リンク | | [Related Sites of this company] 【この会社の関連サイト】 | Person in charge 担当者より | | Person in charge of real-estate and building FP Awano As a 14-year lifetime and without many times expensive things a position to introduce: Nobuyuki Age: 40 Daigyokai experience, We deliver peace of mind and safety to our customers. Sticking to the properties of the investigation, We will thoroughly improve the worry part of the customer. Also not please contact us no matter how trivial thing. 担当者宅建FP粟野 信行年齢:40代業界経験:14年生涯何度とない高額な物をご紹介する立場として、お客様へ安心と安全をお届けいたします。物件の調査にはこだわり、徹底的にお客様のご心配な部分を改善いたします。どんなに些細なことでもお問い合わせ下さいませ。 | Contact お問い合せ先 | | TEL: 0800-603-7091 [Toll free] mobile phone ・ Also available from PHS Caller ID is not notified Please contact the "saw SUUMO (Sumo)" If it does not lead, If the real estate company TEL:0800-603-7091【通話料無料】携帯電話・PHSからもご利用いただけます 発信者番号は通知されません 「SUUMO(スーモ)を見た」と問い合わせください つながらない方、不動産会社の方は
| Land of the right form 土地の権利形態 | | Ownership 所有権 | Time delivery 引き渡し時期 | | Immediate delivery allowed 即引渡し可 | Land category 地目 | | Residential land 宅地 | Use district 用途地域 | | One low-rise 1種低層 | Overview and notices その他概要・特記事項 | | Contact: Awano Nobuyuki, Facilities: Public Water Supply, This sewage, City gas 担当者:粟野 信行、設備:公営水道、本下水、都市ガス | Company profile 会社概要 | | <Mediation> Governor of Tokyo (2) No. 086581 (Ltd.) ad cast Yubinbango150-0022 Shibuya-ku, Tokyo Ebisuminami 1-25-1 <仲介>東京都知事(2)第086581号(株)アドキャスト〒150-0022 東京都渋谷区恵比寿南1-25-1 |
Local land photo現地土地写真  Local (May 2013) Shooting
現地(2013年5月)撮影
 Local (May 2013) Shooting
現地(2013年5月)撮影
Local photos, including front road前面道路含む現地写真  Local (May 2013) Shooting
現地(2013年5月)撮影
Local land photo現地土地写真  Local (May 2013) Shooting
現地(2013年5月)撮影
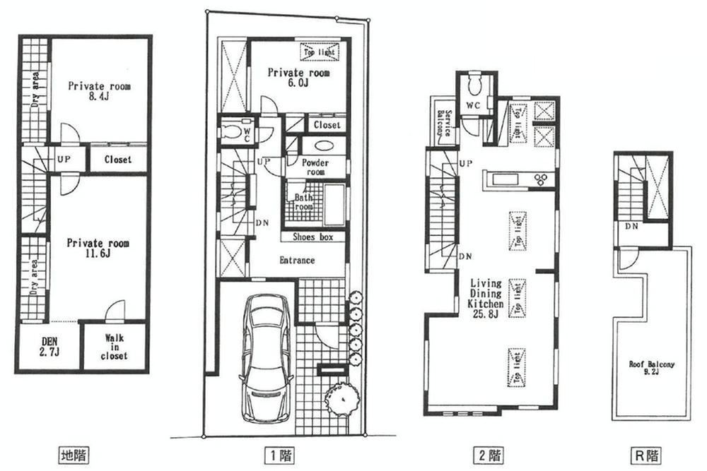
Compartment view + building plan example区画図+建物プラン例  Building plan example (A section) 3LDK, Land price 78,800,000 yen, Land area 86.98 sq m , Building price 25 million yen, Building area 141.7 sq m
建物プラン例(A区画)3LDK、土地価格7880万円、土地面積86.98m2、建物価格2500万円、建物面積141.7m2
Station駅  200m to Jiyugaoka Station
自由が丘駅まで200m
 The entire compartment Figure
全体区画図
Local land photo現地土地写真  Local (May 2013) Shooting
現地(2013年5月)撮影
 Local (May 2013) Shooting
現地(2013年5月)撮影
Location
|