Land/Building » Kanto » Tokyo » Setagaya


Setagaya-ku, Tokyo
Keio Line "Osan Chitose" walk 15 minutes
We will be building the conditional sales areas of Kitakarasuyama. Please tell us, such as do not hesitate to floor plan consultation and building specifications description.
Yang per good, Around traffic fewer, Maintained sidewalk, Free design support, Shaping land, A quiet residential area, Or more before road 6m, 2 along the line more accessible, Vacant lot passes, Building plan example there
Features pickup
2 along the line more accessible / Vacant lot passes / Yang per good / A quiet residential area / Around traffic fewer / Or more before road 6m / Shaping land / Maintained sidewalk / Flat terrain / Building plan example there
Price
27.3 million yen
Building coverage, floor area ratio
60% ・ 200%
Sales compartment
1 compartment
Total number of compartments
10 compartment
Land area
42.02 sq m (12.71 tsubo) (Registration)
Driveway burden-road
Nothing, West 6m width (contact the road width 3.8m)
Land situation
Vacant lot
Address
Setagaya-ku, Tokyo Kitakarasuyama 3
Traffic
Keio Line "Osan Chitose" walk 15 minutes
Keio Line "Roka park" walking 15 minutes
Inokashira "Fujimigaoka" walk 17 minutes
Related links
[Related Sites of this company]
Person in charge
Rep Iwase
Contact
TEL: 0800-603-8969 [Toll free] mobile phone ・ Also available from PHS
Caller ID is not notified
Please contact the "saw SUUMO (Sumo)"
If it does not lead, If the real estate company
Land of the right form
Ownership
Building condition
With
Time delivery
Consultation
Land category
Residential land
Use district
One middle and high
Other limitations
Height district, Quasi-fire zones
Overview and notices
Contact: Iwase, Facilities: Public Water Supply, This sewage, City gas
Company profile
<Marketing alliance (mediated)> Governor of Tokyo (2) No. 089271 (Ltd.) planning Estate Yubinbango153-0063 Meguro-ku, Tokyo Meguro 1-6-17


Local photos, including front road

Local photos, including front road. South road
South road

Local land photo

Local land photo. The land The entire photo
The land The entire photo

Other

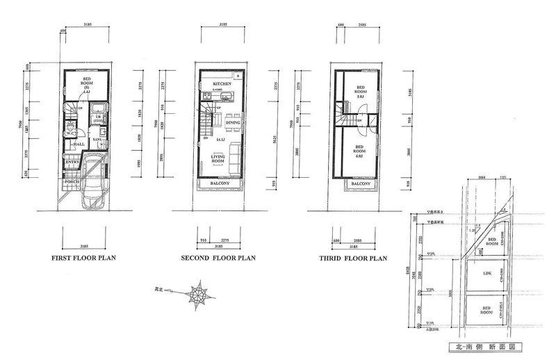
Other. Reference Plan 71.83 square meters Price 11.5 million yen including tax
Reference Plan 71.83 square meters Price 11.5 million yen including tax

Local photos, including front road

Local photos, including front road. West road
West road

The entire compartment Figure
The entire compartment Figure

Other local

Other local. Southwest side Corner lot road
Southwest side Corner lot road

Other

Other. Local east side (local back) park passage
Local east side (local back) park passage

Other. Local east side (local back) park
Local east side (local back) park



Location