Land/Building » Kanto » Tokyo » Setagaya


Setagaya-ku, Tokyo
Setagaya Line Tokyu "Miyanosaka" walk 10 minutes
Odakyu line "Kyodo" station walk 4 minutes ○ building conditions there is no, Please to achieve the ideal of home in your favorite house manufacturer ○ all sections bulk purchase is also possible.
Vacant lot passes, Super close, Yang per good, No construction conditions, City gas
Features pickup
Vacant lot passes / Super close / Yang per good / A quiet residential area / No construction conditions / City gas
Price
51,800,000 yen ~ 69,800,000 yen
Building coverage, floor area ratio
Kenpei rate: 50%, Volume ratio: 100%
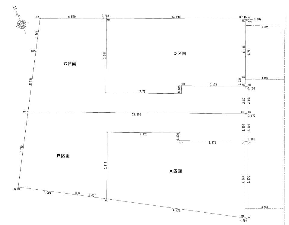
Sales compartment
4 compartments
Total number of compartments
4 compartments
Land area
103.79 sq m ~ 104.52 sq m (measured)
Driveway burden-road
Road width: East 3.6m, Set-back part: 0.49m2 ~ 1.95m2
Land situation
Vacant lot
Address
Setagaya-ku, Tokyo Kyodo 1
Traffic
Setagaya Line Tokyu "Miyanosaka" walk 10 minutes
Odakyu line "Kyodo" walk 4 minutes
Odakyu line "Gotokuji" walk 15 minutes
Related links
[Related Sites of this company]
Person in charge
Rep Yamazaki Yasuomi age: we have to steadily Konasu that cherish the 20s every single.
Contact
TEL: 0800-603-0512 [Toll free] mobile phone ・ Also available from PHS
Caller ID is not notified
Please contact the "saw SUUMO (Sumo)"
If it does not lead, If the real estate company
Land of the right form
Ownership
Time delivery
Consultation
Land category
Residential land
Use district
One low-rise
Overview and notices
Contact: Yamazaki Yasuomi, Facilities: Public Water Supply, This sewage, City gas
Company profile
<Mediation> Governor of Tokyo (9) No. 041553 (Corporation) All Japan Real Estate Association (Corporation) metropolitan area real estate Fair Trade Council member Showa building (Ltd.) Yubinbango167-0053 Suginami-ku, Tokyo Nishiogiminami 3-18-15


Local land photo
Local land photo

Local land photo
Local land photo

Local land photo
Local land photo

Local photos, including front road
Local photos, including front road

Local photos, including front road
Local photos, including front road

The entire compartment Figure
The entire compartment Figure

Supermarket

Supermarket. Daimarupikokku Kyodo 311m to shop
Daimarupikokku Kyodo 311m to shop

Junior high school

Junior high school. 1000m to Setagaya Ward Sakuragaoka Junior High School
1000m to Setagaya Ward Sakuragaoka Junior High School

Primary school

Primary school. 870m to Setagaya Ward Sakuragaoka Elementary School
870m to Setagaya Ward Sakuragaoka Elementary School

Kindergarten ・ Nursery

kindergarten ・ Nursery. Little Women to nursery school 430m
Little Women to nursery school 430m

Hospital

Hospital. 606m to social welfare corporation Kyodo Kodama Shinseikai Kodama hospital
606m to social welfare corporation Kyodo Kodama Shinseikai Kodama hospital

Park

park. 993m until Minamidai park
993m until Minamidai park

Station

station. 320m to Kyodo Station
320m to Kyodo Station



Location