Land/Building » Kanto » Tokyo » Setagaya


Setagaya-ku, Tokyo
Denentoshi Tokyu "Sakurashinmachi" walk 8 minutes
We will be building the conditional sales areas of Komazawa. Please tell us, such as do not hesitate to floor plan consultation and building specifications description.
Yang per good, Around traffic fewer, Maintained sidewalk, Flat to the station, 2 along the line more accessible
Features pickup
2 along the line more accessible / Vacant lot passes / Yang per good / Flat to the station / A quiet residential area / Around traffic fewer / Shaping land / Maintained sidewalk / Flat terrain / Building plan example there
Price
52,700,000 yen
Building coverage, floor area ratio
60% ・ 160%
Sales compartment
1 compartment
Total number of compartments
1 compartment
Land area
64.63 sq m (measured)
Driveway burden-road
Nothing, East 3.5m width
Land situation
Furuya There vacant lot passes
Address
Setagaya-ku, Tokyo Komazawa 3
Traffic
Denentoshi Tokyu "Sakurashinmachi" walk 8 minutes
Denentoshi Tokyu "Komazawa" walk 12 minutes
Setagaya Line Tokyu "Setagaya" walk 16 minutes
Related links
[Related Sites of this company]
Contact
TEL: 0800-603-8969 [Toll free] mobile phone ・ Also available from PHS
Caller ID is not notified
Please contact the "saw SUUMO (Sumo)"
If it does not lead, If the real estate company
Land of the right form
Ownership
Building condition
With
Time delivery
Consultation
Land category
Residential land
Use district
One middle and high
Other limitations
Set-back: already, Height district, Quasi-fire zones, Shade limit Yes
Overview and notices
Facilities: Public Water Supply, This sewage, City gas
Company profile
<Marketing alliance (mediated)> Governor of Tokyo (2) No. 089271 (Ltd.) planning Estate Yubinbango153-0063 Meguro-ku, Tokyo Meguro 1-6-17


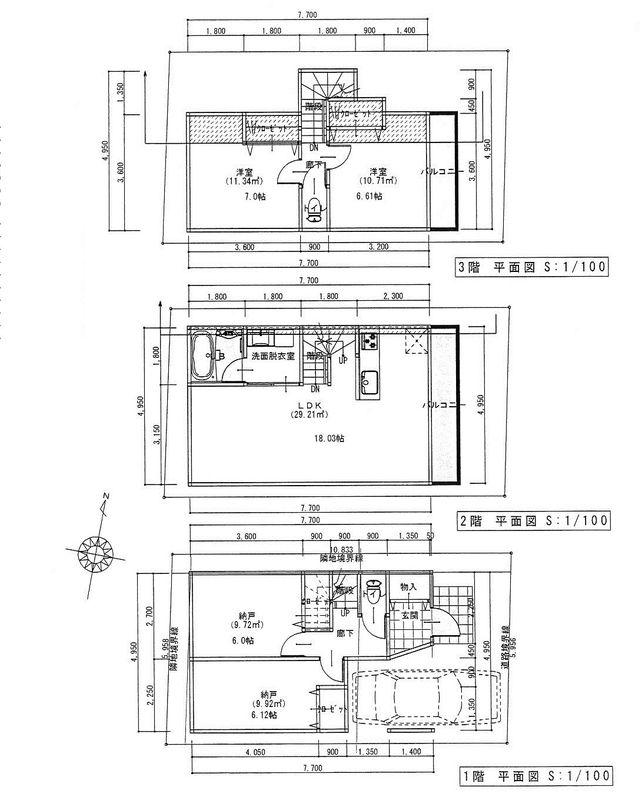
Building plan example (floor plan)

Building plan example (floor plan). 106 square meters of 17 million yen
106 square meters of 17 million yen

Building plan example (exterior photos)

Building plan example (exterior photos). Example of construction
Example of construction

Building plan example (introspection photo)

Building plan example (introspection photo). Example of construction
Example of construction

Building plan example (introspection photo). Example of construction
Example of construction

Building plan example (exterior photos)

Building plan example (exterior photos). Example of construction
Example of construction

Building plan example (introspection photo)

Building plan example (introspection photo). Example of construction
Example of construction

Building plan example (introspection photo). Example of construction
Example of construction

Building plan example (introspection photo). Example of construction
Example of construction

Building plan example (introspection photo). Example of construction
Example of construction

Building plan example (introspection photo). Example of construction
Example of construction

Building plan example (introspection photo). Example of construction
Example of construction

Building plan example (introspection photo). Example of construction
Example of construction



Location