|
|
Setagaya-ku, Tokyo
東京都世田谷区
|
|
Odakyu line "Chitosefunabashi" walk 10 minutes
小田急線「千歳船橋」歩10分
|
|
■ Uchi appeared suitable for 4LDK in low-rise residential area of Sakuragaoka. ■ Umagotooyakesono, Kinutakoen etc., A large park is also close. ■ Sakuragaoka Elementary School ・ Junior high school is the nearest.
■桜丘の低層住宅地に4LDKに適した売地登場。■馬事公苑、砧公園など、大きな公園も近隣にあり。■桜丘小学校・中学校が最寄です。
|
|
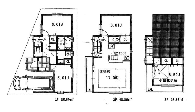
◆ ◇ ◆ ◇ ◆ ◇ ◆ ◇ Features of Property ◆ ◇ ◆ ◇ ◆ ◇ ◆ ◇ ● building free plan possible. It will be free to determine the floor plan. ● possible construction of three-story with low-rise area, Area will be secured. ● floor heating, Dishwasher with a system Kitchen, Bathroom heater dryer is standard equipment. ● popular parks and schools have also enhance child-rearing environment at close. ◆ ◇ ◆ ◇ ◆ ◇ ◆ ◇ ◆ ◇ ◆ ◇ ◆ ◇ ◆ ◇ ◆ ◇ ◆ ◇ ◆ ◇ ◆ Please contact us feel free to those who wish the local of your tour. In conjunction with the other surrounding properties we will introduce.
◆◇◆◇◆◇◆◇ 物件の特徴 ◆◇◆◇◆◇◆◇●建物フリープラン可能。間取りを自由に決められます。●低層地域ながら3階建ての建築が可能で、面積が確保できます。●床暖房、食洗機付きシステムキッチン、浴室暖房乾燥機が標準装備。●人気の公園や学校が至近で子育て環境も充実してます。◆◇◆◇◆◇◆◇◆◇◆◇◆◇◆◇◆◇◆◇◆◇◆現地のご見学をご希望の方は是非お気軽にお問い合わせください。その他周辺物件と併せてご紹介させて頂きます。
|
Features pickup 特徴ピックアップ | | Vacant lot passes / Super close / Yang per good / Flat to the station / Or more before road 6m / Leafy residential area / City gas / Located on a hill / Flat terrain / Building plan example there 更地渡し /スーパーが近い /陽当り良好 /駅まで平坦 /前道6m以上 /緑豊かな住宅地 /都市ガス /高台に立地 /平坦地 /建物プラン例有り |
Price 価格 | | 43,116,000 yen 4311万6000円 |
Building coverage, floor area ratio 建ぺい率・容積率 | | 60% ・ 150% 60%・150% |
Sales compartment 販売区画数 | | 1 compartment 1区画 |
Land area 土地面積 | | 71.85 sq m 71.85m2 |
Driveway burden-road 私道負担・道路 | | Nothing 無 |
Land situation 土地状況 | | Furuya There vacant lot passes 古家有り更地渡し |
Address 住所 | | Setagaya-ku, Tokyo Sakuragaoka-3 東京都世田谷区桜丘3 |
Traffic 交通 | | Odakyu line "Chitosefunabashi" walk 10 minutes Odakyu line "Soshiketani Finance" walk 21 minutes 小田急線「千歳船橋」歩10分 小田急線「祖師ヶ谷大蔵」歩21分
|
Person in charge 担当者より | | Person in charge of real-estate and building FP small blacksmith Chongqing Age: 20 Daigyokai Experience: 4 years peace of mind ・ It will be supported by the best in order to receive a safe real estate purchase. 担当者宅建FP小鍛冶 重慶年齢:20代業界経験:4年安心・安全な不動産購入をして頂く為に全力でサポートさせて頂きます。 |
Contact お問い合せ先 | | TEL: 0800-603-7091 [Toll free] mobile phone ・ Also available from PHS Caller ID is not notified Please contact the "saw SUUMO (Sumo)" If it does not lead, If the real estate company TEL:0800-603-7091【通話料無料】携帯電話・PHSからもご利用いただけます 発信者番号は通知されません 「SUUMO(スーモ)を見た」と問い合わせください つながらない方、不動産会社の方は
|
Land of the right form 土地の権利形態 | | Ownership 所有権 |
Building condition 建築条件 | | With 付 |
Time delivery 引き渡し時期 | | Consultation 相談 |
Land category 地目 | | Residential land 宅地 |
Use district 用途地域 | | One low-rise 1種低層 |
Overview and notices その他概要・特記事項 | | Contact: small blacksmith Chongqing 担当者:小鍛冶 重慶 |
Company profile 会社概要 | | <Mediation> Governor of Tokyo (2) No. 086581 (Ltd.) ad cast Yubinbango150-0022 Shibuya-ku, Tokyo Ebisuminami 1-25-1 <仲介>東京都知事(2)第086581号(株)アドキャスト〒150-0022 東京都渋谷区恵比寿南1-25-1 |