Land/Building » Kanto » Tokyo » Setagaya
 
| | Setagaya-ku, Tokyo 東京都世田谷区 |
| Odakyu line "Chitosefunabashi" walk 2 minutes 小田急線「千歳船橋」歩2分 |
| Super close, It is close to the city, Yang per good, No construction conditions, Urban neighborhood, City gas, Building plan example there スーパーが近い、市街地が近い、陽当り良好、建築条件なし、都市近郊、都市ガス、建物プラン例有り |
| Odakyu line "Chitosefunabashi" station walk about 2 minutes, It is a guide of the land. It is a popular first-class low-rise exclusive residential area that has been consideration for living environment. That there is no building conditions, Please realize my home that suits your family in your favorite house manufacturers. 小田急線「千歳船橋」駅徒歩約2分、土地のご案内です。住環境に配慮された人気の第一種低層住居専用地域です。建築条件はございませんので、お好みのハウスメーカー様でご家族に合ったマイホームを実現して下さい。 |
Features pickup 特徴ピックアップ | | Super close / It is close to the city / Yang per good / No construction conditions / Urban neighborhood / City gas / Building plan example there スーパーが近い /市街地が近い /陽当り良好 /建築条件なし /都市近郊 /都市ガス /建物プラン例有り | Price 価格 | | 48,800,000 yen ・ 49,800,000 yen 4880万円・4980万円 | Building coverage, floor area ratio 建ぺい率・容積率 | | Kenpei rate: 60%, Volume ratio: 150% 建ペい率:60%、容積率:150% | Sales compartment 販売区画数 | | 2 compartment 2区画 | Land area 土地面積 | | 78.21 sq m ・ 78.96 sq m (23.65 tsubo ・ 23.88 tsubo) (measured) 78.21m2・78.96m2(23.65坪・23.88坪)(実測) | Driveway burden-road 私道負担・道路 | | Road width: 3.5m ~ 3.7m 道路幅:3.5m ~ 3.7m | Land situation 土地状況 | | Vacant lot 更地 | Address 住所 | | Setagaya-ku, Tokyo Sakuragaoka-2 東京都世田谷区桜丘2 | Traffic 交通 | | Odakyu line "Chitosefunabashi" walk 2 minutes Odakyu line "Soshiketani Finance" walk 18 minutes Odakyu line "Kyodo" walk 20 minutes 小田急線「千歳船橋」歩2分 小田急線「祖師ヶ谷大蔵」歩18分 小田急線「経堂」歩20分
| Person in charge 担当者より | | Rep Kunimi Daijiro 担当者国見 大次郎 | Contact お問い合せ先 | | MHK (Ltd.) TEL: 03-5790-9103 Please contact as "saw SUUMO (Sumo)" MHK(株)TEL:03-5790-9103「SUUMO(スーモ)を見た」と問い合わせください | Land of the right form 土地の権利形態 | | Ownership 所有権 | Time delivery 引き渡し時期 | | Consultation 相談 | Land category 地目 | | Residential land 宅地 | Use district 用途地域 | | One low-rise 1種低層 | Other limitations その他制限事項 | | Height district, Quasi-fire zones 高度地区、準防火地域 | Overview and notices その他概要・特記事項 | | Contact: Kunimi Daijiro, Facilities: Public Water Supply, This sewage, City gas 担当者:国見 大次郎、設備:公営水道、本下水、都市ガス | Company profile 会社概要 | | <Mediation> Governor of Tokyo (1) No. 093827 MHK (Ltd.) Yubinbango169-0073, Shinjuku-ku, Tokyo Hyakunincho 2-13-15 <仲介>東京都知事(1)第093827号MHK(株)〒169-0073 東京都新宿区百人町2-13-15 |
Local photos, including front road前面道路含む現地写真  Local (11 May 2013) Shooting
現地(2013年11月)撮影
Local land photo現地土地写真  Local (11 May 2013) Shooting
現地(2013年11月)撮影
Local photos, including front road前面道路含む現地写真  Local (11 May 2013) Shooting
現地(2013年11月)撮影
Compartment figure区画図  Land price 48,800,000 yen, Land area 78.21 sq m
土地価格4880万円、土地面積78.21m2
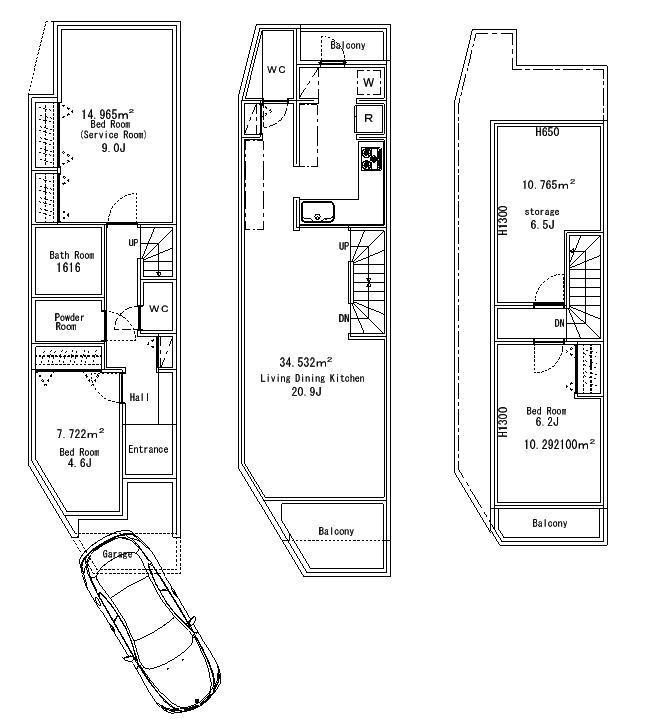
Other building plan exampleその他建物プラン例  Building plan example (A No. land) Building price 22 million yen, Building area 110.02 sq m
建物プラン例(A号地)建物価格2200万円、建物面積110.02m2
Compartment figure区画図  Land price 49,800,000 yen, Land area 78.96 sq m
土地価格4980万円、土地面積78.96m2
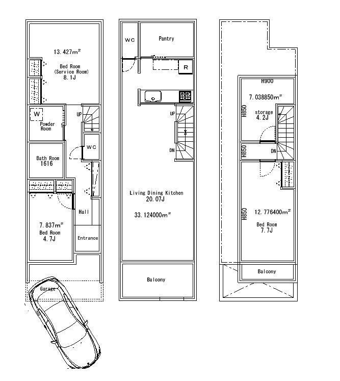
Other building plan exampleその他建物プラン例  Building plan example (B No. land) Building price 22 million yen, Building area 112.43 sq m
建物プラン例(B号地)建物価格2200万円、建物面積112.43m2
Local photos, including front road前面道路含む現地写真  Local (11 May 2013) Shooting
現地(2013年11月)撮影
Police station ・ Police box警察署・交番  Seijo 1141m to police station
成城警察署まで1141m
Supermarketスーパー  Super Ozeki Chitosefunabashi to the store 164m
スーパーオオゼキ千歳船橋店まで164m
 Maibasuketto Kyodo up to 4-chome 320m
まいばすけっと経堂4丁目店まで320m
Post office郵便局  364m until Chitosefunabashi Station post office
千歳船橋駅前郵便局まで364m
Shopping centreショッピングセンター  745m to Muji Setagaya Kinutaten
無印良品世田谷砧店まで745m
Park公園  Sakuragaoka 696m until Yonchome park
桜丘四丁目公園まで696m
Location
|