Land/Building » Kanto » Tokyo » Setagaya
 
| | Setagaya-ku, Tokyo 東京都世田谷区 |
| Tokyu Toyoko Line "Jiyugaoka" walk 7 minutes 東急東横線「自由が丘」歩7分 |
| When you receive your request looking for property from customers in Toyoko Line, It referred to as the "Jiyugaoka if possible" in fairly high probability, There is Jiyugaoka walking distance of quite not even looking for. お客様から東横線で物件探しをご依頼頂く際、かなりの高い確率で「出来れば自由が丘」と言われるのですが、探してもなかなか無いのが自由が丘徒歩圏です。 |
| Because there is a conditional land, First, after receiving your contract the land, Property is where I am built to a meeting of the seller specified construction company and building planning and specifications. The name of the construction company is I said "BLISS", It is a company that specializes in a narrow housing. First seeing the land, I think that you consider from the receipt of the presentation in the showroom located in Shinjuku If you have any interest. . [Reference plan building detail] Total floor area: 80.92 (about 24.47 square meters), Building Price: 13.9 million yen (tax included) ※ Special, The results of ground survey, Improvement if construction work is required, costly. . ※ Special, Lifeline retraction will cost. ※ About 37% of the site is the alley-like portion. 条件付き土地でございますので、まず土地をご契約頂いてから、売主指定の建築会社と建物のプランニングや仕様の打ち合わせをして建てて頂く物件です。建築会社の名前は「BLISS」と申しまして、狭小住宅に特化した会社です。まずは土地をご覧頂き、ご興味あれば新宿にあるショウルームでプレゼンテーションを受けてからご検討頂ければと思います。。【参考プラン建物詳細】延床面積:80.92?(約24.47坪)、建物価格:1390万円(税込) ※別途、地盤調査の結果、改良工事が必要な場合は費用が掛かります。。※別途、ライフライン引き込み費用が掛かります。※敷地の約37%が路地状部分となります。 |
Features pickup 特徴ピックアップ | | 2 along the line more accessible 2沿線以上利用可 | Price 価格 | | 50,320,000 yen 5032万円 | Building coverage, floor area ratio 建ぺい率・容積率 | | 60% ・ 160% 60%・160% | Sales compartment 販売区画数 | | 1 compartment 1区画 | Land area 土地面積 | | 66.49 sq m (measured), Alley-like parts: 37% including 66.49m2(実測)、路地状部分:37%含 | Driveway burden-road 私道負担・道路 | | 14.46 sq m , South 4m width 14.46m2、南4m幅 | Land situation 土地状況 | | Furuya There vacant lot passes 古家有り更地渡し | Address 住所 | | Setagaya-ku, Tokyo Okusawa 7 東京都世田谷区奥沢7 | Traffic 交通 | | Tokyu Toyoko Line "Jiyugaoka" walk 7 minutes Oimachi Line Tokyu "Kuhonbutsu" walk 3 minutes 東急東横線「自由が丘」歩7分 東急大井町線「九品仏」歩3分
| Related links 関連リンク | | [Related Sites of this company] 【この会社の関連サイト】 | Person in charge 担当者より | | The person in charge Ono 担当者尾野 | Contact お問い合せ先 | | TEL: 0800-603-2577 [Toll free] mobile phone ・ Also available from PHS Caller ID is not notified Please contact the "saw SUUMO (Sumo)" If it does not lead, If the real estate company TEL:0800-603-2577【通話料無料】携帯電話・PHSからもご利用いただけます 発信者番号は通知されません 「SUUMO(スーモ)を見た」と問い合わせください つながらない方、不動産会社の方は
| Land of the right form 土地の権利形態 | | Ownership 所有権 | Building condition 建築条件 | | With 付 | Time delivery 引き渡し時期 | | February 2014 late schedule 2014年2月下旬予定 | Land category 地目 | | Residential land 宅地 | Use district 用途地域 | | One middle and high 1種中高 | Overview and notices その他概要・特記事項 | | Contact: Ono, Facilities: Public Water Supply, This sewage, City gas 担当者:尾野、設備:公営水道、本下水、都市ガス | Company profile 会社概要 | | <Mediation> Minister of Land, Infrastructure and Transport (2) No. 007450 (Corporation) Tokyo Metropolitan Government Building Lots and Buildings Transaction Business Association (Corporation) metropolitan area real estate Fair Trade Council member (Ltd.) Mibu Corporation Sakurashinmachi shop Yubinbango154-0015 Setagaya-ku, Tokyo Sakurashinmachi 1-12-13 <仲介>国土交通大臣(2)第007450号(公社)東京都宅地建物取引業協会会員 (公社)首都圏不動産公正取引協議会加盟(株)ミブコーポレーション桜新町店〒154-0015 東京都世田谷区桜新町1-12-13 |
Compartment figure区画図  Land price 50,320,000 yen, Land area 66.49 sq m ※ It is not in the survey map.
土地価格5032万円、土地面積66.49m2 ※実測図ではございません。
Otherその他  Italy of Venice has been image, Jiyugaoka specialty commercial facility "La ・ Vita " About than local 850m
イタリアのヴェネツィアをイメージされた、自由が丘名物の商業施設「ラ・ヴィータ」 現地より約850m
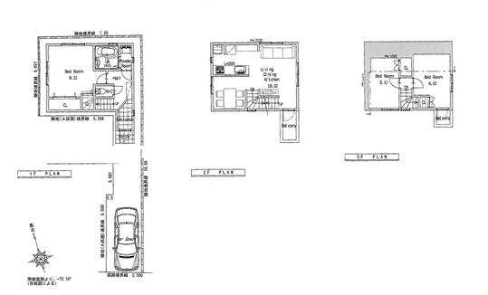
Building plan example (floor plan)建物プラン例(間取り図)  Reference plan building Building price 13,900,000 yen Total floor area of 80.92 square meters
参考プラン建物 建物価格1390万円 延床面積80.92平米
Shopping centreショッピングセンター  Cafe ・ Bakery ・ Miscellaneous goods ・ Shops of fashion, etc. are lined up 420m to "Toreinchi Jiyugaoka"
カフェ・ベーカリー・雑貨・ファッション等のお店が並ぶ「トレインチ自由が丘」まで420m
Other Environmental Photoその他環境写真  Usually of fine shopping 200m up in Kuhonbutsu shopping street
普段の細かいお買い物は九品仏商店街でまで200m
Location
|