|
|
Setagaya-ku, Tokyo
東京都世田谷区
|
|
Denentoshi Tokyu "Sangenjaya" walk 12 minutes
東急田園都市線「三軒茶屋」歩12分
|
|
Immediate delivery Allowed, Around traffic fewer, Shaping land, City gas
即引渡し可、周辺交通量少なめ、整形地、都市ガス
|
|
Immediate delivery Allowed, Around traffic fewer, Shaping land, City gas
即引渡し可、周辺交通量少なめ、整形地、都市ガス
|
Features pickup 特徴ピックアップ | | Immediate delivery Allowed / Around traffic fewer / Shaping land / City gas 即引渡し可 /周辺交通量少なめ /整形地 /都市ガス |
Price 価格 | | 64,800,000 yen ・ 64,800,000 yen 6480万円・6480万円 |
Building coverage, floor area ratio 建ぺい率・容積率 | | Kenpei rate: 60%, Volume ratio: 150% 建ペい率:60%、容積率:150% |
Sales compartment 販売区画数 | | 2 compartment 2区画 |
Total number of compartments 総区画数 | | 2 compartment 2区画 |
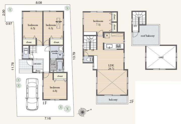
Land area 土地面積 | | 100.78 sq m ~ 100.81 sq m 100.78m2 ~ 100.81m2 |
Driveway burden-road 私道負担・道路 | | Driveway equity 1 Of the 118 minutes of each 883.56 sq m Set back one-third of each 14.24 sq m 私道持分 各883.56m2の内118分の1 セットバック各14.24m2の内3分の1 |
Land situation 土地状況 | | Vacant lot 更地 |
Address 住所 | | Setagaya-ku, Tokyo Nozawa 1 東京都世田谷区野沢1 |
Traffic 交通 | | Denentoshi Tokyu "Sangenjaya" walk 12 minutes 東急田園都市線「三軒茶屋」歩12分
|
Related links 関連リンク | | [Related Sites of this company] 【この会社の関連サイト】 |
Contact お問い合せ先 | | TEL: 0800-603-7102 [Toll free] mobile phone ・ Also available from PHS Caller ID is not notified Please contact the "saw SUUMO (Sumo)" If it does not lead, If the real estate company TEL:0800-603-7102【通話料無料】携帯電話・PHSからもご利用いただけます 発信者番号は通知されません 「SUUMO(スーモ)を見た」と問い合わせください つながらない方、不動産会社の方は
|
Land of the right form 土地の権利形態 | | Ownership 所有権 |
Time delivery 引き渡し時期 | | Immediate delivery allowed 即引渡し可 |
Land category 地目 | | Residential land 宅地 |
Use district 用途地域 | | One low-rise 1種低層 |
Overview and notices その他概要・特記事項 | | Facilities: Public Water Supply, This sewage, City gas 設備:公営水道、本下水、都市ガス |
Company profile 会社概要 | | <Mediation> Governor of Tokyo (2) No. 086230 (Corporation) Tokyo Metropolitan Government Building Lots and Buildings Transaction Business Association (Corporation) metropolitan area real estate Fair Trade Council member (Ltd.) Clark ・ House Yubinbango152-0002 Meguro-ku, Tokyo Megurohon cho 5-13-3 <仲介>東京都知事(2)第086230号(公社)東京都宅地建物取引業協会会員 (公社)首都圏不動産公正取引協議会加盟(株)クラーク・ハウス〒152-0002 東京都目黒区目黒本町5-13-3 |