Land/Building » Kanto » Tokyo » Shinagawa
 
| | Shinagawa-ku, Tokyo 東京都品川区 |
| Oimachi Line Tokyu "Togoshi park" walk 7 minutes 東急大井町線「戸越公園」歩7分 |
| Nakanobu Station 4 minutes of the shaped area of Park View パークビューの中延駅4分の整形地 |
| Yang per good, Around traffic fewer, Free design support, Shaping land, Corner lot, 2 along the line more accessible, Vacant lot passes, Building plan example there 陽当り良好、周辺交通量少なめ、自由設計対応、整形地、角地、2沿線以上利用可、更地渡し、建物プラン例有り |
Features pickup 特徴ピックアップ | | 2 along the line more accessible / Vacant lot passes / Yang per good / Around traffic fewer / Corner lot / Shaping land / Building plan example there 2沿線以上利用可 /更地渡し /陽当り良好 /周辺交通量少なめ /角地 /整形地 /建物プラン例有り | Price 価格 | | 35,300,000 yen 3530万円 | Building coverage, floor area ratio 建ぺい率・容積率 | | 60% ・ 160% 60%・160% | Sales compartment 販売区画数 | | 1 compartment 1区画 | Total number of compartments 総区画数 | | 3 compartment 3区画 | Land area 土地面積 | | 45.18 sq m (measured) 45.18m2(実測) | Driveway burden-road 私道負担・道路 | | Nothing, East 2.9m width 無、東2.9m幅 | Land situation 土地状況 | | Furuya There vacant lot passes 古家有り更地渡し | Address 住所 | | Shinagawa-ku, Tokyo Yutaka-cho, 6 東京都品川区豊町6 | Traffic 交通 | | Oimachi Line Tokyu "Togoshi park" walk 7 minutes Toei Asakusa Line "Nakanobu" walk 4 minutes Tokyu Ikegami Line "Ebara Nakanobu" walk 9 minutes 東急大井町線「戸越公園」歩7分 都営浅草線「中延」歩4分 東急池上線「荏原中延」歩9分
| Related links 関連リンク | | [Related Sites of this company] 【この会社の関連サイト】 | Contact お問い合せ先 | | TEL: 0800-603-8969 [Toll free] mobile phone ・ Also available from PHS Caller ID is not notified Please contact the "saw SUUMO (Sumo)" If it does not lead, If the real estate company TEL:0800-603-8969【通話料無料】携帯電話・PHSからもご利用いただけます 発信者番号は通知されません 「SUUMO(スーモ)を見た」と問い合わせください つながらない方、不動産会社の方は
| Expenses 諸費用 | | Facilities contributions: 540,000 yen / Bulk 設備負担金:54万円/一括 | Land of the right form 土地の権利形態 | | Ownership 所有権 | Building condition 建築条件 | | With 付 | Time delivery 引き渡し時期 | | Consultation 相談 | Land category 地目 | | Residential land 宅地 | Use district 用途地域 | | One dwelling 1種住居 | Other limitations その他制限事項 | | Set-back: already, Regulations have by the Aviation Law, Height district, Quasi-fire zones, Shade limit Yes セットバック:済、航空法による規制有、高度地区、準防火地域、日影制限有 | Overview and notices その他概要・特記事項 | | Facilities: Public Water Supply, This sewage, City gas 設備:公営水道、本下水、都市ガス | Company profile 会社概要 | | <Marketing alliance (mediated)> Governor of Tokyo (2) No. 089271 (Ltd.) planning Estate Yubinbango153-0063 Meguro-ku, Tokyo Meguro 1-6-17 <販売提携(媒介)>東京都知事(2)第089271号(株)プランニングエステート〒153-0063 東京都目黒区目黒1-6-17 |
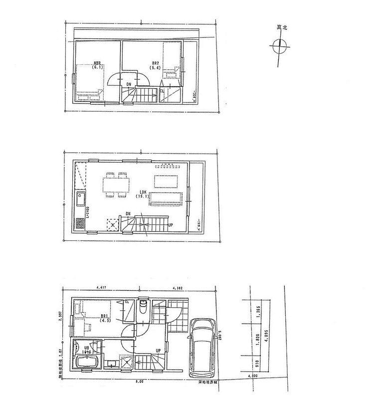
Compartment view + building plan example区画図+建物プラン例  Building plan example, Land price 35,300,000 yen, Land area 45.18 sq m , Building price 12.5 million yen, Building area 72.26 sq m reference plan
建物プラン例、土地価格3530万円、土地面積45.18m2、建物価格1250万円、建物面積72.26m2 参考プラン
Building plan example (exterior photos)建物プラン例(外観写真)  Example of construction
施工例
Building plan example (introspection photo)建物プラン例(内観写真)  Example of construction
施工例
Local land photo現地土地写真  Site
現場
Building plan example (introspection photo)建物プラン例(内観写真)  Example of construction
施工例
Kindergarten ・ Nursery幼稚園・保育園  326m caption until Togoshi sunflower nursery school (social welfare corporation)
戸越ひまわり保育園(社会福祉法人)まで326m キャプション
Other localその他現地  Park view
公園ビュー
Building plan example (introspection photo)建物プラン例(内観写真)  Example of construction
施工例
Supermarketスーパー  Ito-Yokado ・ 385m caption to Togoshi shop
イトーヨーカドー・戸越店まで385m キャプション
Other localその他現地  Site
現場
Building plan example (introspection photo)建物プラン例(内観写真)  Example of construction
施工例
Primary school小学校  260m to Ohara elementary school
大原小学校まで260m
Building plan example (introspection photo)建物プラン例(内観写真)  Example of construction
施工例
Junior high school中学校  1100m until Toyoha Mori Gakuen
豊葉の杜学園まで1100m
Building plan example (introspection photo)建物プラン例(内観写真)  Example of construction
施工例
 Example of construction
施工例
 Example of construction
施工例
 Example of construction
施工例
 Example of construction
施工例
 Example of construction
施工例
 Example of construction
施工例
Other localその他現地  Sectioning
区割り
 Reference diagram
参考図
 Example of construction
施工例
 Example of construction
施工例
 Example of construction
施工例
 Example of construction
施工例
 Construction t Example
施工t例
Location
|