43,800,000 yen, 90.8 sq m
Land/Building » Kanto » Tokyo » Shinjuku ward
 
| | Shinjuku-ku, Tokyo 東京都新宿区 |
| JR Yamanote Line "Shin-Okubo" walk 8 minutes JR山手線「新大久保」歩8分 |
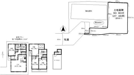
Price 価格 | | 43,800,000 yen 4380万円 | Building coverage, floor area ratio 建ぺい率・容積率 | | 60% ・ 160% 60%・160% | Sales compartment 販売区画数 | | 1 compartment 1区画 | Land area 土地面積 | | 90.8 sq m (measured) 90.8m2(実測) | Driveway burden-road 私道負担・道路 | | Nothing, West 4m width (contact the road width 2.3m) 無、西4m幅(接道幅2.3m) | Land situation 土地状況 | | Furuya There 古家有り | Address 住所 | | Shinjuku-ku, Tokyo Okubo 2 東京都新宿区大久保2 | Traffic 交通 | | JR Yamanote Line "Shin-Okubo" walk 8 minutes JR山手線「新大久保」歩8分
| Person in charge 担当者より | | Person in charge of the helical Yasuyuki 担当者弦巻 泰之 | Contact お問い合せ先 | | Sumitomo Real Estate Sales Co., Ltd. Ebisu business center TEL: 03-5725-4611 "saw SUUMO (Sumo)" and please contact 住友不動産販売(株)恵比寿営業センターTEL:03-5725-4611「SUUMO(スーモ)を見た」と問い合わせください | Land of the right form 土地の権利形態 | | Ownership 所有権 | Time delivery 引き渡し時期 | | Consultation 相談 | Land category 地目 | | Residential land 宅地 | Use district 用途地域 | | One middle and high 1種中高 | Other limitations その他制限事項 | | / Terrain: flat /地勢:平坦 | Overview and notices その他概要・特記事項 | | Contact: helical Yasuyuki 担当者:弦巻 泰之 | Company profile 会社概要 | | <Mediation> Minister of Land, Infrastructure and Transport (11) No. 002077 (one company) Real Estate Association (Corporation) metropolitan area real estate Fair Trade Council member Sumitomo Real Estate Sales Co., Ltd. Ebisu business center Yubinbango150-0022, Shibuya-ku, Tokyo Ebisuminami 1-2-9 Kobayashi building the third floor <仲介>国土交通大臣(11)第002077号(一社)不動産協会会員 (公社)首都圏不動産公正取引協議会加盟住友不動産販売(株)恵比寿営業センター〒150-0022 東京都渋谷区恵比寿南1-2-9 小林ビル3階 |
Local land photo現地土地写真  Local (building owner)
現地(建物有)
 Compartment figure
区画図
Location
|