|
|
Shinjuku-ku, Tokyo
東京都新宿区
|
|
Toei Oedo Line "Ochiaiminami Nagasaki" walk 1 minute
都営大江戸線「落合南長崎」歩1分
|
|
Located in a quiet residential AGI of 1 minute station walk. Building conditions There is no.
駅徒歩1分の閑静な住宅阿木に立地。建築条件はございません。
|
|
Immediate delivery Allowed, Super close, Siemens south road, A quiet residential area, No construction conditions, City gas, Flat terrain, Building plan example there
即引渡し可、スーパーが近い、南側道路面す、閑静な住宅地、建築条件なし、都市ガス、平坦地、建物プラン例有り
|
Features pickup 特徴ピックアップ | | Immediate delivery Allowed / Super close / Siemens south road / A quiet residential area / No construction conditions / City gas / Flat terrain / Building plan example there 即引渡し可 /スーパーが近い /南側道路面す /閑静な住宅地 /建築条件なし /都市ガス /平坦地 /建物プラン例有り |
Price 価格 | | 37.5 million yen 3750万円 |
Building coverage, floor area ratio 建ぺい率・容積率 | | Fifty percent ・ Hundred percent 50%・100% |
Sales compartment 販売区画数 | | 1 compartment 1区画 |
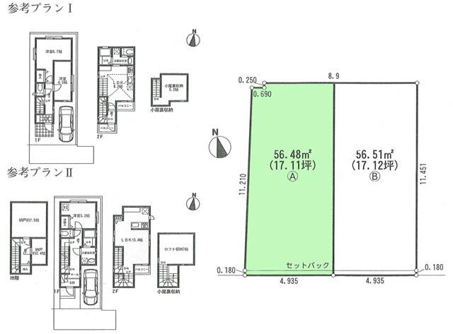
Land area 土地面積 | | 56.48 sq m (17.08 tsubo) (measured) 56.48m2(17.08坪)(実測) |
Driveway burden-road 私道負担・道路 | | Nothing, South 4m width 無、南4m幅 |
Land situation 土地状況 | | Vacant lot 更地 |
Address 住所 | | Shinjuku-ku, Tokyo Nishiochiai 1 東京都新宿区西落合1 |
Traffic 交通 | | Toei Oedo Line "Ochiaiminami Nagasaki" walk 1 minute 都営大江戸線「落合南長崎」歩1分
|
Contact お問い合せ先 | | TEL: 0800-603-2123 [Toll free] mobile phone ・ Also available from PHS Caller ID is not notified Please contact the "saw SUUMO (Sumo)" If it does not lead, If the real estate company TEL:0800-603-2123【通話料無料】携帯電話・PHSからもご利用いただけます 発信者番号は通知されません 「SUUMO(スーモ)を見た」と問い合わせください つながらない方、不動産会社の方は
|
Land of the right form 土地の権利形態 | | Ownership 所有権 |
Time delivery 引き渡し時期 | | Immediate delivery allowed 即引渡し可 |
Land category 地目 | | Residential land 宅地 |
Use district 用途地域 | | One low-rise 1種低層 |
Other limitations その他制限事項 | | Setback: upon 0.88 sq m セットバック:要0.88m2 |
Overview and notices その他概要・特記事項 | | Facilities: Public Water Supply, This sewage, City gas 設備:公営水道、本下水、都市ガス |
Company profile 会社概要 | | <Mediation> Governor of Tokyo (5) No. 072100 (Ltd.) Ken housing Yubinbango155-0031 Setagaya-ku, Tokyo Kitazawa 2-1-16 <仲介>東京都知事(5)第072100号(株)健ハウジング〒155-0031 東京都世田谷区北沢2-1-16 |