Land/Building » Kanto » Tokyo » Shinjuku ward
 
| | Shinjuku-ku, Tokyo 東京都新宿区 |
| JR Chuo Line "Higashi-Nakano" walk 8 minutes JR中央線「東中野」歩8分 |
| Site area of about 18.7 square meters There is widespread feeling of opening and between a population of about 7.6M Because of well-proportioned shape close to a square, The degree of freedom of the plan is the high land 敷地面積約18.7坪 間口約7.6Mと広く開放感あり 正方形に近い均整の取れた形状の為、プランの自由度が高い土地です |
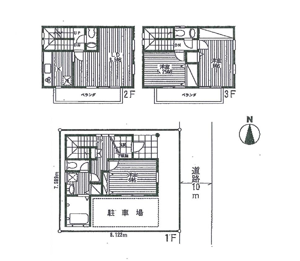
| Reference plan car space one minute to three-story 3LDK Center ・ Sobu Line "Higashi-Nakano," an 8-minute walk from the station 3 line 3 station available good location [Higashi-Nakano Small ・ Nakano third in] 参考プランは3階建ての3LDKにカースペース1台分 中央・総武線『東中野』駅より徒歩8分 3路線3駅利用可能な好立地 【東中野小・中野第三中】 |
Features pickup 特徴ピックアップ | | 2 along the line more accessible / Immediate delivery Allowed / Super close / Yang per good / A quiet residential area / Or more before road 6m / Shaping land / No construction conditions / Leafy residential area / City gas / Building plan example there 2沿線以上利用可 /即引渡し可 /スーパーが近い /陽当り良好 /閑静な住宅地 /前道6m以上 /整形地 /建築条件なし /緑豊かな住宅地 /都市ガス /建物プラン例有り | Price 価格 | | 48 million yen 4800万円 | Building coverage, floor area ratio 建ぺい率・容積率 | | 60% ・ 400% 60%・400% | Sales compartment 販売区画数 | | 1 compartment 1区画 | Land area 土地面積 | | 61.79 sq m (18.69 square meters) 61.79m2(18.69坪) | Driveway burden-road 私道負担・道路 | | Nothing, East 10m width 無、東10m幅 | Land situation 土地状況 | | Furuya There 古家有り | Address 住所 | | Shinjuku-ku, Tokyo Kitashinjuku 4 東京都新宿区北新宿4 | Traffic 交通 | | JR Chuo Line "Higashi-Nakano" walk 8 minutes Seibu Shinjuku Line "Nakai" walk 15 minutes JR Yamanote Line "Shin-Okubo" walk 15 minutes JR中央線「東中野」歩8分 西武新宿線「中井」歩15分 JR山手線「新大久保」歩15分
| Person in charge 担当者より | | [Regarding this property.] Shaping land of frontage spread Seongnam ・ Josai area Please Leave! ! Local contact information by area limited! Unpublished Property number! ! Contact us, please call! 03-3797-3468 【この物件について】間口広めの整形地 城南・城西エリアはおまかせください!!エリア限定による地元密着情報!未公開物件多数!!お問い合わせはお電話下さい!03-3797-3468 | Contact お問い合せ先 | | TEL: 0800-601-5017 [Toll free] mobile phone ・ Also available from PHS Caller ID is not notified Please contact the "saw SUUMO (Sumo)" If it does not lead, If the real estate company TEL:0800-601-5017【通話料無料】携帯電話・PHSからもご利用いただけます 発信者番号は通知されません 「SUUMO(スーモ)を見た」と問い合わせください つながらない方、不動産会社の方は
| Land of the right form 土地の権利形態 | | Ownership 所有権 | Time delivery 引き渡し時期 | | Immediate delivery allowed 即引渡し可 | Land category 地目 | | Residential land 宅地 | Use district 用途地域 | | One dwelling 1種住居 | Overview and notices その他概要・特記事項 | | Facilities: Public Water Supply, This sewage, City gas 設備:公営水道、本下水、都市ガス | Company profile 会社概要 | | <Mediation> Governor of Tokyo (1) No. 095623 (stock) Tokyo House Yubinbango158-0098 Setagaya-ku, Tokyo Kamiyoga 5-4-5 <仲介>東京都知事(1)第095623号(株)東京ハウス〒158-0098 東京都世田谷区上用賀5-4-5 |
Compartment figure区画図  Land price 48 million yen, Land area 61.79 sq m
土地価格4800万円、土地面積61.79m2
Compartment view + building plan example区画図+建物プラン例  Building plan example, Land price 48 million yen, Land area 61.79 sq m
建物プラン例、土地価格4800万円、土地面積61.79m2
Local land photo現地土地写真  Yes quality goods
上物あり
 Yes quality goods
上物あり
 Local photos, including front road
前面道路含む現地写真
 Local photos, including front road
前面道路含む現地写真
Building plan example (introspection photo)建物プラン例(内観写真)  Example of construction
施工例
 Example of construction
施工例
 Example of construction
施工例
Station駅  640m to Higashi-Nakano Station
東中野駅まで640m
 1200m to Nakai Station
中井駅まで1200m
Supermarketスーパー  Until Inageya 260m
いなげやまで260m
Drug storeドラッグストア  300m to San drag
サンドラッグまで300m
Bank銀行  700m to Bank of Tokyo-Mitsubishi UFJ
三菱東京UFJ銀行まで700m
Park公園  550m until Ochiai Central Park
落合中央公園まで550m
Kindergarten ・ Nursery幼稚園・保育園  289m up the hill nursery of Hidamari
陽だまりの丘保育園まで289m
Junior high school中学校  260m until Nakano third junior high school
中野第三中学校まで260m
Location
|