Land/Building » Kanto » Tokyo » Suginami
 
| | Suginami-ku, Tokyo 東京都杉並区 |
| Seibu Shinjuku Line "Iogi" walk 4 minutes 西武新宿線「井荻」歩4分 |
| No construction conditions, Leafy residential area, A quiet residential area, Flat terrain, Building plan example there, Super close, Yang per good, Flat to the station, Around traffic fewer, Shaping land, Mu front building, City gas, Improvement has been walking 建築条件なし、緑豊かな住宅地、閑静な住宅地、平坦地、建物プラン例有り、スーパーが近い、陽当り良好、駅まで平坦、周辺交通量少なめ、整形地、前面棟無、都市ガス、整備された歩 |
| ■ Seibu Shinjuku Line "Iogi" station walk 4 minutes of good location! ■ Nestled in good quiet residential area per yang [No construction conditions] Uchi ~ Possible architecture at your favorite House manufacturer ~ ■ Close to supermarkets and hospitals, Good living environment has been dotted and schools! ■ There is also reference plan ■西武新宿線「井荻」駅徒歩4分の好立地!■陽当りの良い閑静な住宅街にたたずむ【建築条件なし】売地 ~ お好きなハウスメーカーで建築可能 ~ ■近隣にスーパーや病院、学校など点在しており住環境良好!■参考プランもございます |
Features pickup 特徴ピックアップ | | Super close / Yang per good / Flat to the station / A quiet residential area / Around traffic fewer / Shaping land / No construction conditions / Leafy residential area / Mu front building / City gas / Maintained sidewalk / Flat terrain / Building plan example there スーパーが近い /陽当り良好 /駅まで平坦 /閑静な住宅地 /周辺交通量少なめ /整形地 /建築条件なし /緑豊かな住宅地 /前面棟無 /都市ガス /整備された歩道 /平坦地 /建物プラン例有り | Price 価格 | | 14.3 million yen 1430万円 | Building coverage, floor area ratio 建ぺい率・容積率 | | 60% ・ 200% 60%・200% | Sales compartment 販売区画数 | | 1 compartment 1区画 | Land area 土地面積 | | 34.48 sq m (10.43 tsubo) (Registration) 34.48m2(10.43坪)(登記) | Driveway burden-road 私道負担・道路 | | 6.3 sq m , West 6.3m width 6.3m2、西6.3m幅 | Land situation 土地状況 | | Furuya There 古家有り | Address 住所 | | Suginami-ku, Tokyo rush 4-3-4 東京都杉並区井草4-3-4 | Traffic 交通 | | Seibu Shinjuku Line "Iogi" walk 4 minutes Seibu Shinjuku Line "Kamiigusa" walk 9 minutes Seibu Shinjuku Line "Shimo Igusa" walk 18 minutes 西武新宿線「井荻」歩4分 西武新宿線「上井草」歩9分 西武新宿線「下井草」歩18分
| Person in charge 担当者より | | Person in charge of real-estate and building FP Kato Toshimitsu Age: 40 shop-studded hobbies such as Daiongaku and movies we have our popular and easy to enter. Mortgage consultation, etc., Please feel free to contact us. 担当者宅建FP加藤 利光年齢:40代音楽や映画など趣味を散りばめた店舗は入りやすいとご好評いただいております。住宅ローンのご相談等、お気軽にご相談ください。 | Contact お問い合せ先 | | TEL: 0800-603-9070 [Toll free] mobile phone ・ Also available from PHS Caller ID is not notified Please contact the "saw SUUMO (Sumo)" If it does not lead, If the real estate company TEL:0800-603-9070【通話料無料】携帯電話・PHSからもご利用いただけます 発信者番号は通知されません 「SUUMO(スーモ)を見た」と問い合わせください つながらない方、不動産会社の方は
| Land of the right form 土地の権利形態 | | Ownership 所有権 | Time delivery 引き渡し時期 | | Consultation 相談 | Land category 地目 | | Residential land 宅地 | Use district 用途地域 | | One low-rise 1種低層 | Overview and notices その他概要・特記事項 | | Contact: Kato Toshimitsu, Facilities: Public Water Supply, This sewage, City gas 担当者:加藤 利光、設備:公営水道、本下水、都市ガス | Company profile 会社概要 | | <Mediation> Governor of Tokyo (1) No. 090622 (Ltd.) denim Yubinbango156-0057 Setagaya-ku, Tokyo Kamikitazawa 3-18-8 <仲介>東京都知事(1)第090622号(株)デニム〒156-0057 東京都世田谷区上北沢3-18-8 |
Compartment figure区画図  Land price 14.3 million yen, Land area 34.48 sq m
土地価格1430万円、土地面積34.48m2
Local photos, including front road前面道路含む現地写真  Architecture there can be in your favorite house manufacturer for no building conditions
建築条件なしのためお好きなハウスメーカーで建築が可能でございます
View photos from the local現地からの眺望写真  It is also a good positive per in a quiet residential area
閑静な住宅街で陽当りも良好です
 Local photos, including front road
前面道路含む現地写真
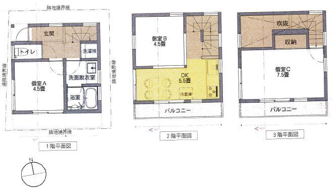
Building plan example (floor plan)建物プラン例(間取り図)  Building plan example building price 12 million yen, Building area 55.15 sq m
建物プラン例建物価格1200万円、建物面積55.15m2
Supermarketスーパー  384m until the Summit store Iogi Ekimae
サミットストア井荻駅前店まで384m
 Other
その他
 Local photos, including front road
前面道路含む現地写真
Other building plan exampleその他建物プラン例  Reference plan cross-sectional view
参考プラン断面図
Hospital病院  1140m to Medical Corporation Foundation Ogikubo Hospital
医療法人財団荻窪病院まで1140m
Junior high school中学校  1057m to Suginami Ward rush Junior High School
杉並区立井草中学校まで1057m
Primary school小学校  581m to Suginami Ward Shinomiya Elementary School
杉並区立四宮小学校まで581m
Park公園  338m to rush Forest Park
井草森公園まで338m
Location
|