Land/Building » Kanto » Tokyo » Suginami
 
| | Suginami-ku, Tokyo 東京都杉並区 |
| JR Chuo Line "Asagaya" walk 9 minutes JR中央線「阿佐ヶ谷」歩9分 |
| 9-minute walk from the popular "Asagaya" station! 30 square meters of is shaping land. Good hit yang attached on the south side adjacent land passage! ! Contact us [0800-603-7798 Toll free] Co., Ltd. to Comfort 人気の「阿佐ヶ谷」駅から徒歩9分!30坪の整形地です。南側隣地通路に付き陽当たり良好!!お問い合わせは【0800-603-7798 通話料無料】株式会社コンフォートまで |
Features pickup 特徴ピックアップ | | Vacant lot passes / A quiet residential area / Shaping land / No construction conditions / Building plan example there 更地渡し /閑静な住宅地 /整形地 /建築条件なし /建物プラン例有り | Price 価格 | | 57,100,000 yen 5710万円 | Building coverage, floor area ratio 建ぺい率・容積率 | | Fifty percent ・ Hundred percent 50%・100% | Sales compartment 販売区画数 | | 1 compartment 1区画 | Land area 土地面積 | | 101.95 sq m 101.95m2 | Driveway burden-road 私道負担・道路 | | Nothing, East 4m width (contact the road width 9.1m) 無、東4m幅(接道幅9.1m) | Land situation 土地状況 | | Furuya There vacant lot passes 古家有り更地渡し | Address 住所 | | Suginami-ku, Tokyo Asagayakita 4 東京都杉並区阿佐谷北4 | Traffic 交通 | | JR Chuo Line "Asagaya" walk 9 minutes JR中央線「阿佐ヶ谷」歩9分
| Related links 関連リンク | | [Related Sites of this company] 【この会社の関連サイト】 | Person in charge 担当者より | | Person in charge of Shibuya 担当者渋谷 | Contact お問い合せ先 | | (Ltd.) Comfort TEL: 0800-603-7798 [Toll free] mobile phone ・ Also available from PHS Caller ID is not notified Please contact the "saw SUUMO (Sumo)" If it does not lead, If the real estate company (株)コンフォートTEL:0800-603-7798【通話料無料】携帯電話・PHSからもご利用いただけます 発信者番号は通知されません 「SUUMO(スーモ)を見た」と問い合わせください つながらない方、不動産会社の方は
| Expenses 諸費用 | | Hot Springs: Hot Springs right gold Mu 温泉:温泉権利金無 | Land of the right form 土地の権利形態 | | Ownership 所有権 | Time delivery 引き渡し時期 | | Consultation 相談 | Land category 地目 | | Residential land 宅地 | Use district 用途地域 | | One low-rise 1種低層 | Overview and notices その他概要・特記事項 | | Contact: Shibuya, Facilities: Public Water Supply, This sewage, City gas 担当者:渋谷、設備:公営水道、本下水、都市ガス | Company profile 会社概要 | | <Mediation> Governor of Tokyo (3) No. 078763 (Corporation) All Japan Real Estate Association (Corporation) metropolitan area real estate Fair Trade Council member (Ltd.) Comfort Yubinbango166-0001 Suginami-ku, Tokyo Asagayakita 1-35-7 <仲介>東京都知事(3)第078763号(公社)全日本不動産協会会員 (公社)首都圏不動産公正取引協議会加盟(株)コンフォート〒166-0001 東京都杉並区阿佐谷北1-35-7 |
Local land photo現地土地写真  Local (12 May 2013) Shooting
現地(2013年12月)撮影
Compartment figure区画図  Land price 57,100,000 yen, Land area 101.95 sq m
土地価格5710万円、土地面積101.95m2
Building plan example (Perth ・ appearance)建物プラン例(パース・外観)  Building plan example (C No. land)
建物プラン例(C号地)
Local photos, including front road前面道路含む現地写真  Local (12 May 2013) Shooting
現地(2013年12月)撮影
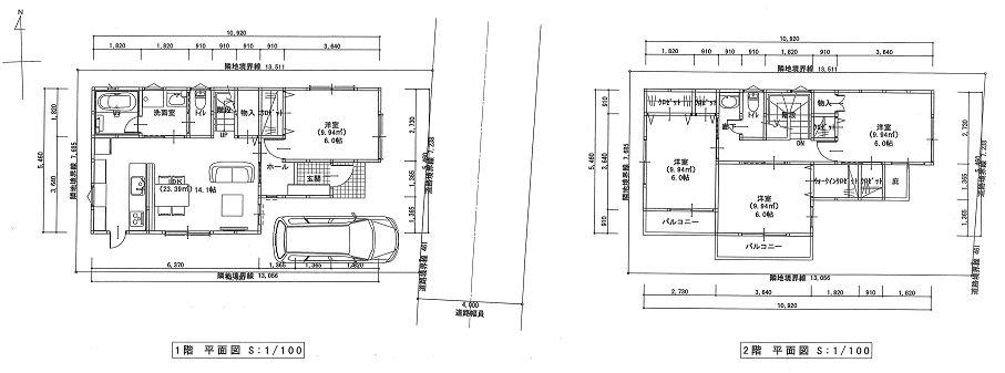
Building plan example (floor plan)建物プラン例(間取り図)  Building plan example (C No. land)
建物プラン例(C号地)
Streets around周辺の街並み  200m until Nakasugi Street
中杉通りまで200m
Location
|