Land/Building » Kanto » Tokyo » Taito


Taito-ku, Tokyo
JR Sobu Line "Asakusabashi" walk 4 minutes
JR Sobu Line, Toei Asakusa Line "Asakusa" station 4 minutes walk! It is northwest of the corner lot! Gozaimasen building conditions! Guests architecture in your favorite House manufacturer!
We will create reference plan! Please not hesitate to contact us! Delivery conditions such as, Please consult details!
Features pickup
2 along the line more accessible / Immediate delivery Allowed / Or more before road 6m / Corner lot / No construction conditions / City gas
Price
32 million yen
Building coverage, floor area ratio
80% ・ 360 percent
Sales compartment
1 compartment
Land area
46.28 sq m (13.99 tsubo) (Registration)
Driveway burden-road
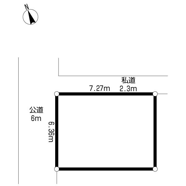
Nothing, West 6m width (contact the road width 6.4m), North 2.3m width (contact the road width 7.3m)
Land situation
Furuya There
Address
Taito-ku, Tokyo Asakusabashi 2
Traffic
JR Sobu Line "Asakusabashi" walk 4 minutes Toei Asakusa Line "Asakusa" walk 4 minutes
Toei Asakusa Line "Kuramae" walk 8 minutes
Contact
TEL: 0800-603-4316 [Toll free] mobile phone ・ Also available from PHS
Caller ID is not notified
Please contact the "saw SUUMO (Sumo)"
If it does not lead, If the real estate company
Land of the right form
Ownership
Time delivery
Immediate delivery allowed
Land category
Residential land
Use district
Commerce
Other limitations
Setback: upon 6.18 sq m
Overview and notices
Facilities: Public Water Supply, This sewage, City gas
Company profile
<Mediation> Minister of Land, Infrastructure and Transport (2) the first 007,129 No. Pitattohausu Asakusabashi shop Starts Pitattohausu Co. Yubinbango111-0052 Taito-ku, Tokyo Yanagibashi 1-4-3 twin truss II building


Local land photo

Local land photo. local
local

Other local

Other local. local
local

Local photos, including front road

Local photos, including front road. Frontal road
Frontal road

Compartment figure

Compartment figure. Land price 32 million yen, Land area 46.28 sq m compartment view
Land price 32 million yen, Land area 46.28 sq m compartment view

Local photos, including front road

Local photos, including front road. North driveway
North driveway

Supermarket

Supermarket. Hanamasa of 713m meat to life Kanda Izumi-cho shop
Hanamasa of 713m meat to life Kanda Izumi-cho shop

Other local

Other local. First floor room
First floor room

Other local. Second floor room
Second floor room

Other local. Second floor toilet
Second floor toilet

Other local. Second floor flow field
Second floor flow field



Location