136 million yen, 306.77 sq m
Land/Building » Kanto » Tokyo » Taito
 
| | Taito-ku, Tokyo 東京都台東区 |
| Tokyo Metro Ginza Line "Asakusa" walk 19 minutes 東京メトロ銀座線「浅草」歩19分 |
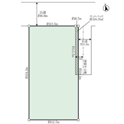
Price 価格 | | 136 million yen 1億3600万円 | Building coverage, floor area ratio 建ぺい率・容積率 | | 80% ・ 360 percent 80%・360% | Sales compartment 販売区画数 | | 1 compartment 1区画 | Land area 土地面積 | | 306.77 sq m (registration) 306.77m2(登記) | Driveway burden-road 私道負担・道路 | | Nothing, Northeast 6m width, Southeast 3.3m width 無、北東6m幅、南東3.3m幅 | Land situation 土地状況 | | Vacant lot 更地 | Address 住所 | | Taito-ku, Tokyo Imad 2 東京都台東区今戸2 | Traffic 交通 | | Tokyo Metro Ginza Line "Asakusa" walk 19 minutes 東京メトロ銀座線「浅草」歩19分
| Person in charge 担当者より | | Rep Nishitani SatoshiSusumu 担当者西谷 敏将 | Contact お問い合せ先 | | Tokyu Livable Inc. Ueno Center TEL: 0800-603-0165 [Toll free] mobile phone ・ Also available from PHS Caller ID is not notified Please contact the "saw SUUMO (Sumo)" If it does not lead, If the real estate company 東急リバブル(株)上野センターTEL:0800-603-0165【通話料無料】携帯電話・PHSからもご利用いただけます 発信者番号は通知されません 「SUUMO(スーモ)を見た」と問い合わせください つながらない方、不動産会社の方は
| Land of the right form 土地の権利形態 | | Ownership 所有権 | Time delivery 引き渡し時期 | | Consultation 相談 | Land category 地目 | | Residential land 宅地 | Use district 用途地域 | | Residential 近隣商業 | Other limitations その他制限事項 | | Current Status parking (in operation / Contract termination after delivery, Delivery after the asphalt pavement removal) 現況駐車場(稼働中/契約解除後引渡し、アスファルト舗装撤去後引渡し) | Overview and notices その他概要・特記事項 | | Contact: Nishitani SatoshiSusumu 担当者:西谷 敏将 | Company profile 会社概要 | | <Mediation> Minister of Land, Infrastructure and Transport (10) No. 002611 (one company) Real Estate Association (Corporation) metropolitan area real estate Fair Trade Council member Tokyu Livable Co., Ltd. Ueno center Yubinbango110-0005, Taito-ku, Tokyo Ueno 2-7-13 JTB Sompo Japan Ueno Kyodo Building 8th Floor <仲介>国土交通大臣(10)第002611号(一社)不動産協会会員 (公社)首都圏不動産公正取引協議会加盟東急リバブル(株)上野センター〒110-0005 東京都台東区上野2-7-13 JTB損保ジャパン上野共同ビル8階 |
Local land photo現地土地写真  local
現地
Compartment figure区画図  Land area 306.77 sq m
土地面積306.77m2
Location
|