New Homes » Kanto » Tokyo » Central City
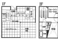
Chuo-ku, Tokyo Tsukishima 4
Chuo-ku, Tokyo Tsukishima 4

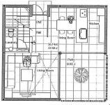
Chuo-ku, Tokyo Tsukishima 4
Chuo-ku, Tokyo Tsukishima 4

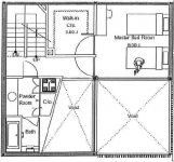
Chuo-ku, Tokyo Tsukishima 4